EasyManua.ls Logo

Powerware 9330 - Page 227

Powerware 9330
268 pages
Print Icon
To Next Page IconTo Next Page
To Next Page IconTo Next Page
To Previous Page IconTo Previous Page
To Previous Page IconTo Previous Page
Loading...
A --- 5 3
Powerware 9330 (10 kVA--40 kVA) Installation and Operation
164201300 Rev . N 013004
DESCRIPTION:
DATE:
DRAWING NO: SHEET:
REVI SION:
N
4of5
013004
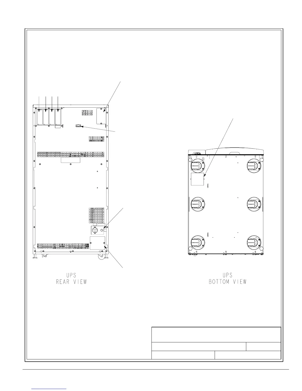
LOCATION OF UPS CABINET TERMINALS
164201300---8
UPS CABINET CUSTOMER INTERFACE TERMINALS
X-SLOT
COMMUNICATIONS
BAY
BOTTOM ENTRY CONDUIT
LANDING FOR AC INPUT AND
OUTPUT CONNECTIONS
(REMOVE PANEL TO DRILL
OR PUNCH CONDUIT
HOLES.)
X1
X2 X3 X4
CUSTOMER
CONVENIENCE
OUTLET FOR MODEM
120V AC, 0.2 AMP
SERIAL PORT
POWERWARE 9330 (10 kVA-- 20 kVA)
CUSTOMER INTERFACE
CONDUIT LANDING PLATE
(REMOVE PANEL TO DRILL
OR PUNCH CONDUIT
HOLES.)
REAR ENTRY CONDUIT
LANDING FOR AC INPUT AND
OUTPUT AND REMOTE
BA TTERY CONNECTIONS
(REMOVE PANEL TO DRILL
OR PUNCH CONDUIT
HOLES.)

Table of Contents

Other manuals for Powerware 9330

Related product manuals