EasyManua.ls Logo

Powerware Plus 80 - Page 151

Default Icon
160 pages
Print Icon
To Next Page IconTo Next Page
To Next Page IconTo Next Page
To Previous Page IconTo Previous Page
To Previous Page IconTo Previous Page
Loading...
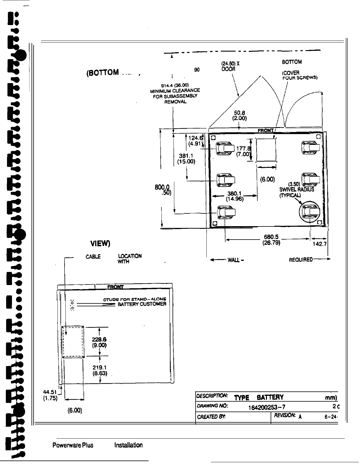
TYPE 2 BATTERY CABINET
I
624.6
(24.W)
x
BOTTOM
CABLE
(POTTOM
VIEW
90
DEGREE COOR SWING
ENTRY LOCATION
COVER SECURED
637.5
(25.10)
600.0
(31
so)
I
I
t-
152.4’
W’2
6.9
(3so)
D
?MlvEL
RAOIUS
FW
@
n
TYPE 2 BATTERY CABINET
(TOP
VIEW
TOP CABLE ENTRY LOCAllON
(COVER SECURED w(TH FOUR SCREWS)
660.5
(26.79)-l-
142.7
(5.62)
-
WAIL
-
NO SACK ACCESS
RECUIREO-
0
:+;
GROUNDING LUG
. .
DESOR’-’
TYPE 2
BAl-ERY
CABINET (915
tin)
152.4
ORAWNQ
No:
(6.W
164200253-7
, SHEET:
2
c
CREATEDm!
L ORLANDO
REVJSON:
A
, DATE:
e-2,.
Powemare
Plus
60 UPS
lmtallatbn
Manual
A-17 1

Table of Contents

Related product manuals