EasyManua.ls Logo

Ricoh RT5120 - Page 131

Ricoh RT5120
149 pages
Print Icon
To Next Page IconTo Next Page
To Next Page IconTo Next Page
To Previous Page IconTo Previous Page
To Previous Page IconTo Previous Page
Loading...
2.Detailed Descriptions
127
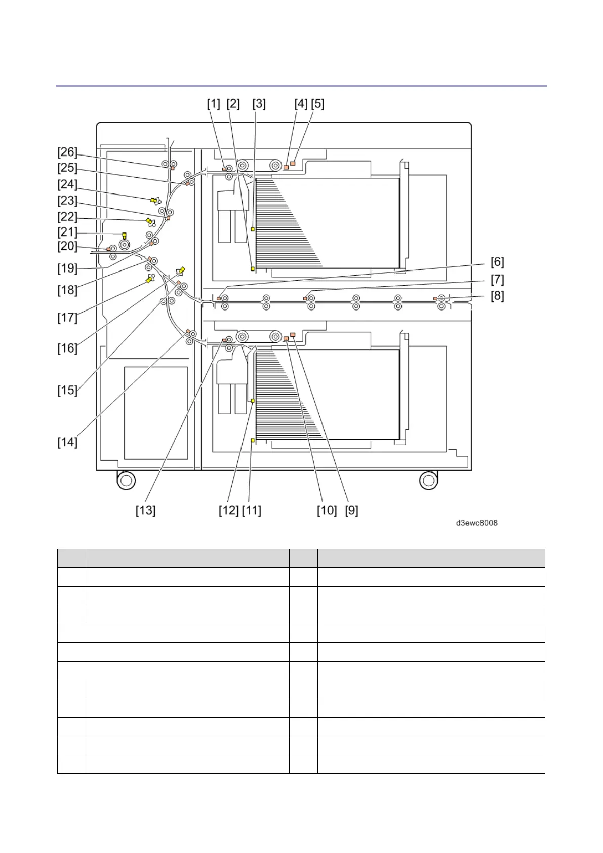
Sensor Layout
No.
Name
No.
Name
1
Tray 1 Paper Feed Sensor
14
Tray 2 Transport Sensor
2
Tray 1 Paper Lower Limit Sensor
15
Vertical Transport Entrance Sensor
3
Tray 1 Paper Height Middle Sensor
16
Vertical Transport Entrance Contact Sensor
4
Tray 1 Paper End Sensor 2
17
Tray 2 Vertical Transport Exit Contact Sensor
5
Tray 1 Paper End Sensor 1
18
Tray 2 Vertical Transport Exit Sensor
6
Horizontal Transport Exit Sensor *
1
19
Tray 1 Vertical Transport Exit Sensor
7
Horizontal Transport Middle Sensor *
1
20
LCIT Exit Sensor
8
Horizontal Transport Entrance Sensor *
1
21
LCIT Exit Roller Contact Sensor
9
Tray 2 Paper End Sensor 1
22
Tray 1 Vertical Transport Exit Contact Sensor
10
Tray 2 Paper End Sensor 2
23
Tray 1 Vertical Transport Sensor
11
Tray 2 Paper Lower Limit Sensor
24
Tray 1 Vertical Transport Contact Sensor

Table of Contents

Related product manuals