EasyManua.ls Logo

Siemens SIMODRIVE 611 digital - Connection Example, Pulse Enable

Siemens SIMODRIVE 611 digital
436 pages
To Next Page IconTo Next Page
To Next Page IconTo Next Page
To Previous Page IconTo Previous Page
To Previous Page IconTo Previous Page
Loading...
8
05.01
8.3 Axis expansion using a monitoring module
8-247
© Siemens AG 2008 All Rights Reserved
SIMODRIVE 611 Configuration Manual (PJU) – 05/2008 Edition
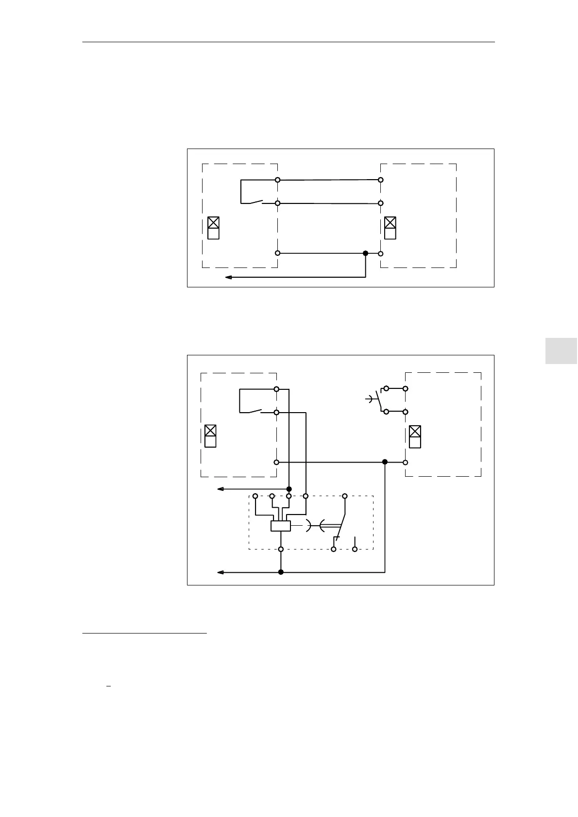
8.3.2 Connection example, pulse enable
Ready/
Error message
S1.2
72
73.1
FR– 19
1)
19 FR–
Ready/
Error message
S1.2
63 IF
9 FR+
0 V
To the external power supply
1)
2)
NE module Monitoring module
Fig. 8-7 Instantaneous shutdown, pulse enable
Ready/
Error message
S1.2
72
73.1
FR– 19
1)
19 FR–
Ready/
Error message
S1.2
63 IF
9 FR+
0 V
To the external power supply
1)
A1 A3B1 B3
A2 18
15
16
+24 V
–KT
–KT
15
18
2)
3)
NE module Monitoring module
Fig. 8-8 Delayed shutdown, pulse enable
1) Settings, S1.2 Ready/fault signal, refer to Chapter 6.2.
2) The shutdown function is shown in a simplified fashion without the contacts of the drive–related control.
3) Time relay with delayed drop–out with auxiliary voltage, e.g. 3RP1505–1AP30,
t(v) > max. braking time of the drives after the monitoring module.
Instantaneous
shutdown
Delayed shutdown
8 Im
p
ortant Circuit Information
Aotewell Ltd
www.aotewell.com
Industry Automation
HongKong|UK|China
sales@aotewell.com
+86-755-8660-6182

Table of Contents

Related product manuals