EasyManua.ls Logo

Siemens SIRIUS 3SK1 - Design; Terminal Assignment

Siemens SIRIUS 3SK1
230 pages
To Next Page IconTo Next Page
To Next Page IconTo Next Page
To Previous Page IconTo Previous Page
To Previous Page IconTo Previous Page
Loading...
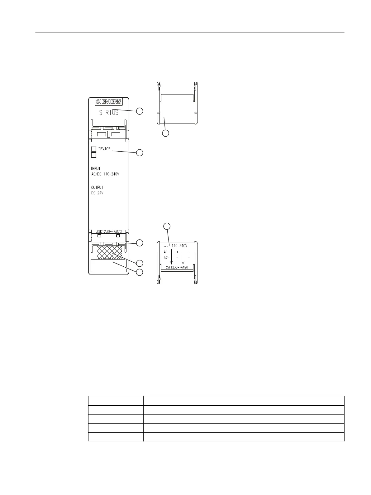
5.5.2.3 Design
Top cover 󹪞ap
Top cover 󹪞ap; internal inscription
Display LEDs
Bottom cover 󹪞ap
Bottom cover 󹪞ap; internal inscription
DataMatrix code
Device identi󹪝cation label
5.5.2.4 Terminal assignment
Terminal Explanation
A1 L+
A2 N-
+ +24 V DC
+ +24 V DC
3SK1 / 3RQ1 devices
5.5 3SK1 input expansions
SIRIUS 3SK1 Safety Relays and 3RQ1 Positively-Driven Coupling Relays
Equipment Manual, 05/2021, A5E02526190021A/RS-AE/005 109

Table of Contents

Other manuals for Siemens SIRIUS 3SK1

Related product manuals