EasyManua.ls Logo

Siemens SIRIUS 3SK1 - Internal Circuit Diagrams; Internal Circuit Diagrams for 3 SK1 Standard Basic Units

Siemens SIRIUS 3SK1
230 pages
To Next Page IconTo Next Page
To Next Page IconTo Next Page
To Previous Page IconTo Previous Page
To Previous Page IconTo Previous Page
Loading...
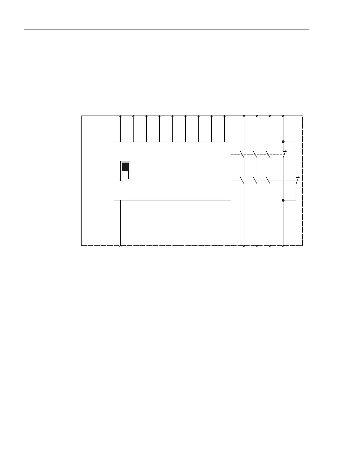
14.2 Internal circuit diagrams
14.2.1 Internal circuit diagrams for 3SK1 Standard basic units
Basic unit 3SK1111-.AB30 Standard relay instantaneous (24 V)
$XWRVWDUW0RQLWRUHG6WDUW
/RJLF

$

)6
,17,17,17,17
$
.
Circuit diagrams
14.2 Internal circuit diagrams
SIRIUS 3SK1 Safety Relays and 3RQ1 Positively-Driven Coupling Relays
198 Equipment Manual, 05/2021, A5E02526190021A/RS-AE/005

Table of Contents

Other manuals for Siemens SIRIUS 3SK1

Related product manuals