EasyManua.ls Logo

Simrad argus - Page 128

Simrad argus
164 pages
Print Icon
To Next Page IconTo Next Page
To Next Page IconTo Next Page
To Previous Page IconTo Previous Page
To Previous Page IconTo Previous Page
Loading...
Argus Radar - ANNEX A
988-10187-004 6.2
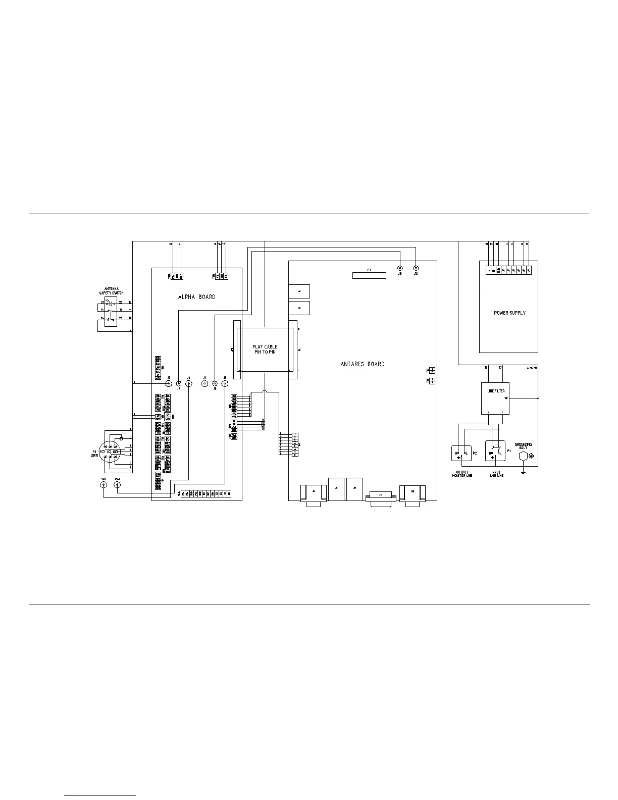
Display Core Unit Internal Connection with SRT Power Supply

Table of Contents

Related product manuals