EasyManua.ls Logo

Simrad argus - CHAPTER 6 Annex a

Simrad argus
164 pages
Print Icon
To Next Page IconTo Next Page
To Next Page IconTo Next Page
To Previous Page IconTo Previous Page
To Previous Page IconTo Previous Page
Loading...
Argus Radar - ANNEX A
988-10187-004 6.1
CHAPTER 6 ANNEX A
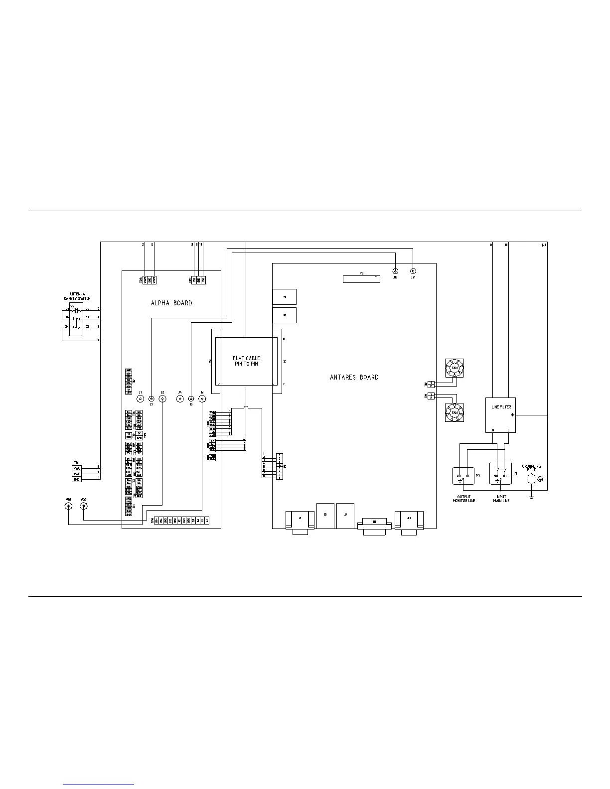
Display Core Unit Internal Connection

Table of Contents

Related product manuals