EasyManua.ls Logo

Simrad argus - Page 139

Simrad argus
164 pages
Print Icon
To Next Page IconTo Next Page
To Next Page IconTo Next Page
To Previous Page IconTo Previous Page
To Previous Page IconTo Previous Page
Loading...
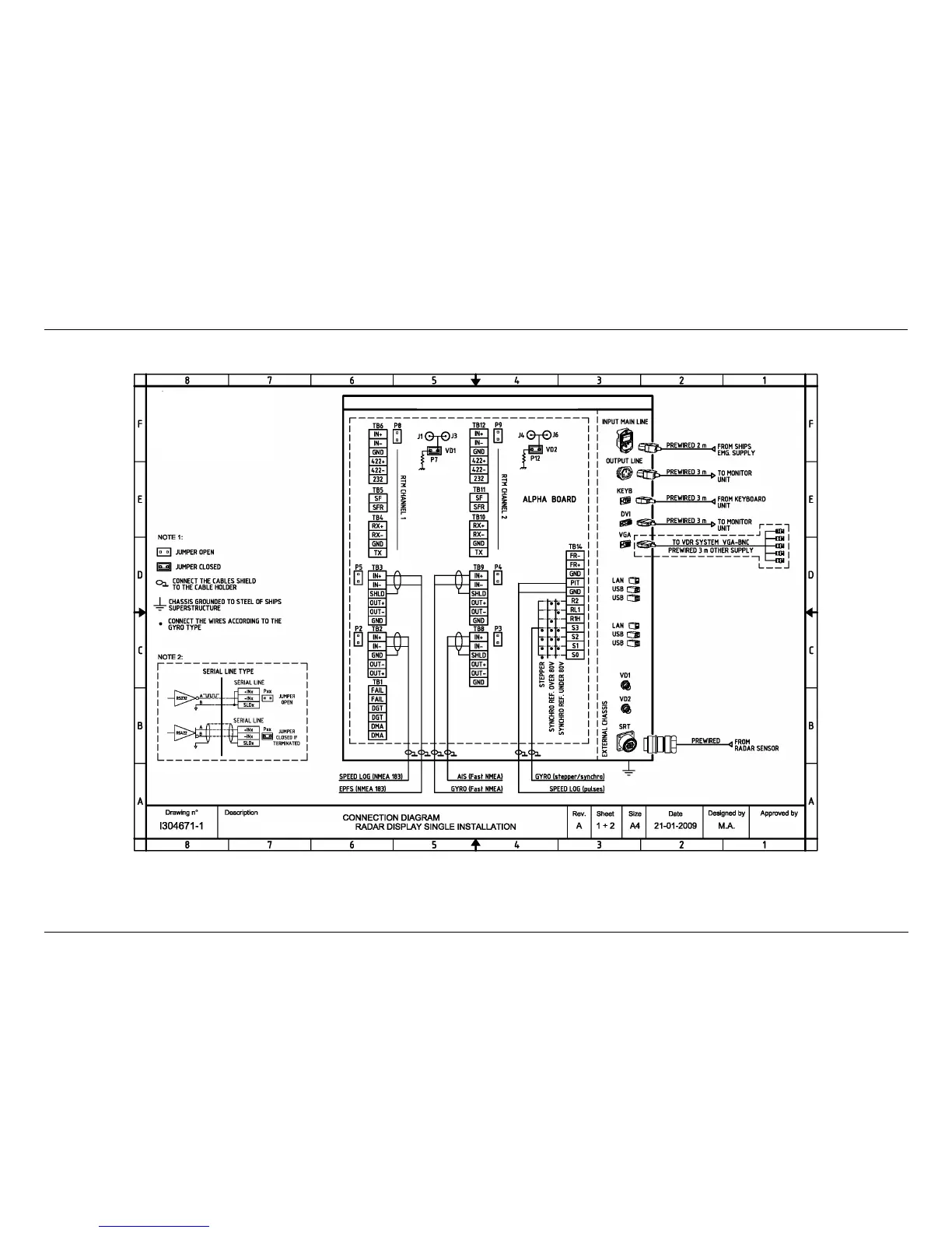
Argus Radar - ANNEX B
988-10187-004 7.8
ARGUS Core Unit
Connection Diagram ARGUS Single Installation

Table of Contents

Related product manuals