EasyManua.ls Logo

Suzuki F6A - Page 192

Suzuki F6A
202 pages
Print Icon
To Next Page IconTo Next Page
To Next Page IconTo Next Page
To Previous Page IconTo Previous Page
To Previous Page IconTo Previous Page
Loading...
190
1
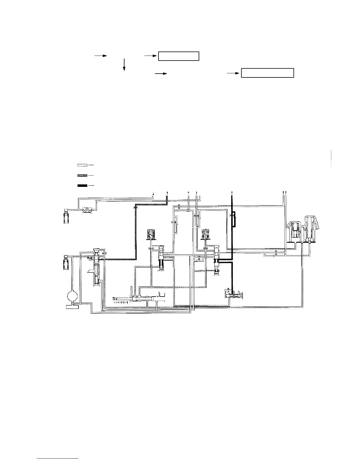
ST
GEAR (L RANGE)
Line Pressure
Pressure regulator valve manual valve forward clutch
2–3 shift valve locost modulator valve first reverse brake
Since the shift solenoid valve No. 1 is ON, the 2–3 shift valve is not operate, and the line pressure passing through the
port of the L range of the manual valve passes through the 2–3 shift valve and the locost modulator and operates the
first reverse brake.
The shift solenoid valve No. 2 is OFF, the 1–2 shift valve is operated, the line pressure operates only the forward clutch.
LINE PRESSURE
TORQUE CONVERTER PRESSURE
LOCUST MODULATOR
PRESSURE
TORQUE
CONVERTER
DIRECT
CLUTCH
FORWARD
CLUTCH
INTERNAL
LUBRICATION
FIRST REVERSE
BRAKE
SECOND BRAKE SERVO
RELEASE SIDE TIGHTENING SIDE
NO.1
NO.2
ACCUMULATOR
COOLER BYPASS
VALVE
OIL COOLER
SOLENOID NO. 1
SOLENOID
NO. 2
PRESSURE
RELEASE VALVE
OIL PUMP
PRESSURE
REGULA-
TOR
VALVE
L2DNRP
MANUAL
VALVE
2–3 SHIFT
VALVE
1–2 SHIFT
VALVE
LOCOST MODULATOR VALVE

Table of Contents

Related product manuals