EasyManua.ls Logo

TECE Lux Mini - Page 103

TECE Lux Mini
110 pages
Print Icon
To Next Page IconTo Next Page
To Next Page IconTo Next Page
To Previous Page IconTo Previous Page
To Previous Page IconTo Previous Page
Loading...
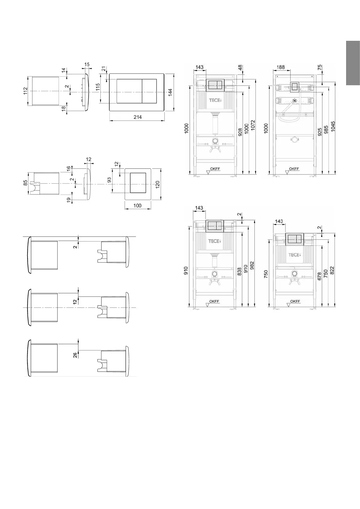
TECEplanus
Dimensions of toilet flush plate and bare-wall protection for vertical slot alignment
Urinal flush plate and bare-wall protection for vertical slot alignment
Toilet flush plate (left) and urinal flush plate (right):
- Installation flush at the top (top illustration)
- Centred installation (centre illustration)
- Installation flush at the bottom (bottom illustration)
Toilet flush plate (left) and urinal flush plate (right) with  mm module
Toilet flush plate with  mm module (left) and  mm module (right)
-
Flush plates

Table of Contents

Related product manuals