EasyManua.ls Logo

TECE Lux Mini - Page 99

TECE Lux Mini
110 pages
Print Icon
To Next Page IconTo Next Page
To Next Page IconTo Next Page
To Previous Page IconTo Previous Page
To Previous Page IconTo Previous Page
Loading...
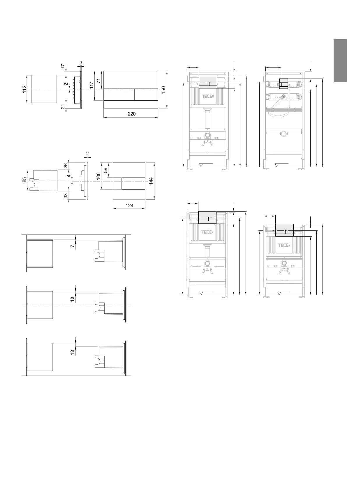
TECEsquare II metal
Dimensions of toilet flush plate and bare-wall protection for vertical slot alignment
Urinal flush plate and bare-wall protection for vertical slot alignment
Toilet flush plate (left) and urinal flush plate (right):
- Installation flush at the top (top illustration)
- Centred installation (centre illustration)
- Installation flush at the bottom (bottom illustration)
1000
999
925
1075
1000
981
909
1053
140 188
OKFF
OKFF
45
67
Toilet flush plate (left) and urinal flush plate (right) with  mm module
910
909
834
984
140
750
749
674
824
140
OKFF OKFF
4
4
Toilet flush plate with  mm module (left) and  mm module (right)
-
Flush plates

Table of Contents

Related product manuals