EasyManua.ls Logo

Toshiba TOSVERT VF-nC3E - Settings Depending on Voltage (0 to 5 V) Input

Toshiba TOSVERT VF-nC3E
252 pages
Print Icon
To Next Page IconTo Next Page
To Next Page IconTo Next Page
To Previous Page IconTo Previous Page
To Previous Page IconTo Previous Page
Loading...
E6582233
G-13
7 7
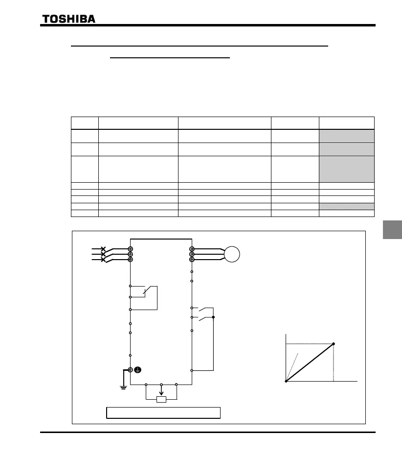
7.3.3 Settings depending on voltage (0 to 5 V) input
<external potentiometer>
You can set the frequency by connecting the FRH kit (optional), or a potentiometer (1 to 10k – 1/4W) to the VI
terminal.
Connect the potentiometer between the P5, VI, and CC terminals. The standard voltage for the P5 terminal is 5Vdc.
Instead of using the potentiometer, you can set the frequency settings by inputting an analog voltage signal of 0
to 5Vdc between the VI and CC terminals.
The following shows examples when the run command is input from the terminal.
Title Function Adjustment range Default setting Setting example
 Command mode selection 0 - 2
1
(
panel ke
y
pad
)
0
(
terminal board
)

Frequency setting mode
selection
0 - 5
2
(
settin
g
dial
)
0
(
terminal board VI
)

Analog/logic input selection
(VI terminal)
0: Voltage signal input (0 - 10V)
1: Current signal input (4 - 20mA)
2: Logic input
3: Volta
g
e si
g
nal input
(
0 - 5V
)
0
3
(Voltage signal
(0 - 5V))
 VI input point 1 setting 0 - 100% 0 0
 VI input point 1 frequenc
y
0.0 - 400.0Hz 0.0 0.0
 VI input point 2 settin
g
0 - 100% 100 100
 VI input point 2 frequency 0.0 - 400.0Hz * 60.0
 Analo
g
input filter 4 - 1000 ms 64 64
Moto
r
IM
R/L1
U/T1
MCCB
Power
Supply
S/L2
T/L3
V/T2
W/T3
CC
S1
S2
CC
F
R
FM
FLC
P24
OUT
VI
P5
VF-nC3E
Run and stop settings
You can switch between forward run (F)
and reverser run (R), and run/stop with
external signals.
Setting characteristics for the
frequency setting signal and operation
frequency
Set characteristics at two points in the
diagram below.
Connecting and calibrating the
frequency meter
Select the type of meter connected at
 and calibrate.
Refer to section 3.4 for details.
Forward
run
Reverse
r
un
 = : Voltage signal input (0 – 5V)
Hz
%


 
Point 2
Point 1
Frequency setting signal
0% 100%
(0 V to 5 V)
Operation frequency
NO
1 to 10 - 1/4 W
FLA
FLB

Table of Contents

Related product manuals