EasyManua.ls Logo

Triconex Trident - Page 101

Default Icon
274 pages
Print Icon
To Next Page IconTo Next Page
To Next Page IconTo Next Page
To Previous Page IconTo Previous Page
To Previous Page IconTo Previous Page
Loading...
Input/Output Modules 85
Chapter 3 System Description
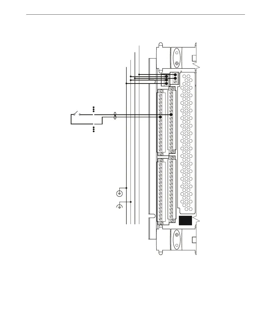
Model 2301 Digital Input Baseplate Field Connections
1
2
3
4
5
6
7
8
9
10
11
12
13
14
15
16
1
2
3
4
5
6
7
8
9
10
11
12
13
14
15
16
Field
Contact
17
18
19
20
21
22
23
24
25
26
27
28
29
30
31
32
17
18
19
20
21
22
23
24
25
26
27
28
29
30
31
32
+
~
~
~
~
~~~~
F
0
Typical Point
(1 of 32 Points Shown)
~
+24 V #1
~
+24 V #2
~
RTN
~
Safety
+
+

Table of Contents