EasyManua.ls Logo

Triconex Trident - Installing Additional I⁄O Columns; Installing an I⁄O Extender Module

Default Icon
274 pages
Print Icon
To Next Page IconTo Next Page
To Next Page IconTo Next Page
To Previous Page IconTo Previous Page
To Previous Page IconTo Previous Page
Loading...
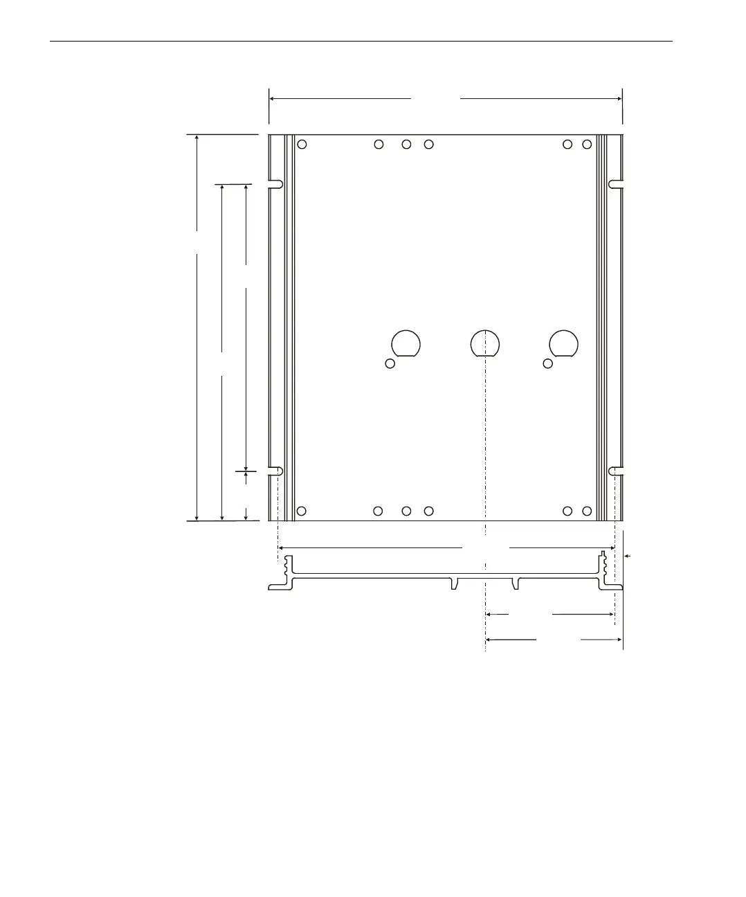
130 Guidelines
Trident Planning and Installation Guide
Dimensions and
Clearances for
Installing MP
Baseplates
1.23 in.
31.2 mm
8.53 in.
216.7 mm
9.76 in.
247.9 mm
9.02 in.
229.1 mm
3.52 in.
89.4 mm
C
L
8.56 in.
217.4 mm
0.23 in.
5.8 mm
3.29 in.
83.6 mm
7.30 in.
185.4 mm

Table of Contents