EasyManua.ls Logo

Triconex Trident - Installing I⁄O Bus Extension Cables; Installing I⁄O Bus Terminations

Default Icon
274 pages
Print Icon
To Next Page IconTo Next Page
To Next Page IconTo Next Page
To Previous Page IconTo Previous Page
To Previous Page IconTo Previous Page
Loading...
Guidelines 131
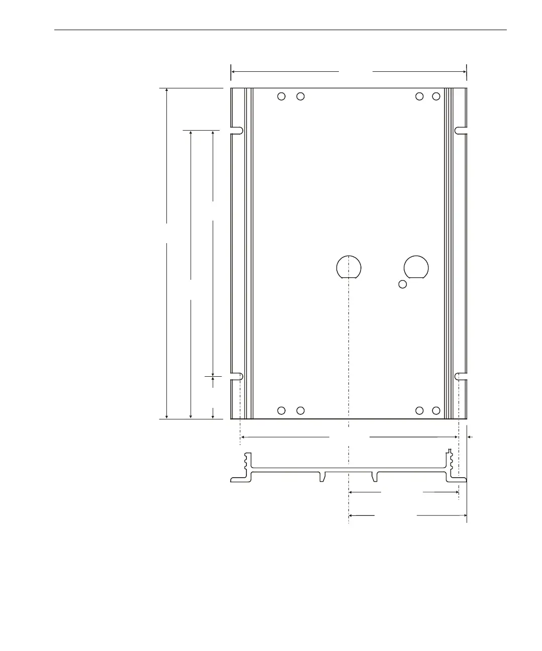
Chapter 4 Installation and Maintenance
Dimensions and
Clearances for
Installing IO
Baseplates
1.23 in.
31.2 mm
7.02 in.
166.7 mm
3.29 in.
83.6 mm
3.52 in.
89.4 mm
C
L
7.30 in.
185.4 mm
9.76 in.
247.9 mm
8.53 in.
216.7 mm
0.23 in.
5.8 mm
6.56 in.
166.7 mm

Table of Contents