EasyManua.ls Logo

Triconex Trident - Page 173

Default Icon
274 pages
Print Icon
To Next Page IconTo Next Page
To Next Page IconTo Next Page
To Previous Page IconTo Previous Page
To Previous Page IconTo Previous Page
Loading...
Connecting to a TriStation PC 157
Chapter 4 Installation and Maintenance
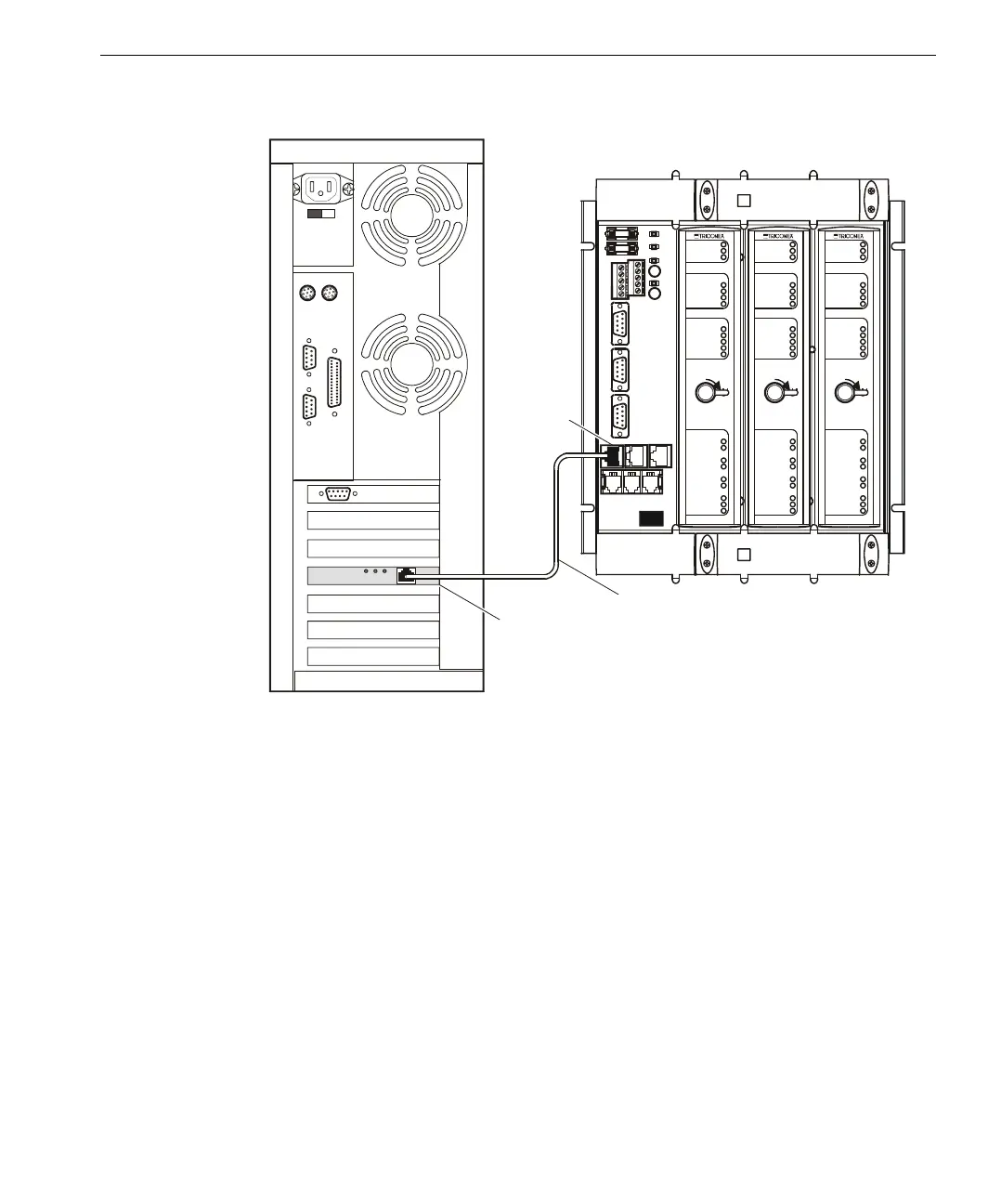
Connecting an MP
Using a Cross-
Over Cable
T
X
MP Baseplate with Modules
TriStation PC, Rear View
Network Adapter Card
Cross-Over (Channel A)
LOCK
REMOTE
RUN
PROGRAM
HALT
TX
RX
TX
PS1
RX
SYSTEM AL ARM
TX
PROGRAM ALARM
RX
OVER TEMP ERATURE
LINK
TX
RX
PS2
PAS S
FAULT
A
CTI VE
3101
MP
MODE
STATUS
COMMUNICATIONS
IO BUS
COMM BUS
SERIAL
TRI STATIO N
LOCK
REMOTE
RUN
PROGRAM
HALT
TX
RX
TX
PS1
RX
SYSTEM ALARM
TX
PROGRAM ALARM
RX
OVER TEMPERATURE
LINK
TX
RX
PS2
PAS S
FAULT
ACT IVE
3101
MP
MODE
STATUS
CO MMUN IC ATI ONS
IO BUS
COMM BUS
SERIAL
TRIS TATION
LOCK
REMOTE
RUN
PROGRAM
HALT
TX
RX
TX
PS1
RX
SYSTEM ALARM
TX
PROGRAM ALARM
RX
OVER TEM PER ATURE
LINK
TX
RX
PS2
PAS S
FAULT
ACT IVE
3101
MP
MODE
STATUS
COMMUNICATIONS
IO BUS
COMM BUS
SERIAL
TRISTATION
RJ-45
Connector
+
DSP1
DSP2
DSP3
DSP4
1

Table of Contents