EasyManua.ls Logo

Vertiv Liebert EXM2 - Option Introduction; Optional Side Cabinet

Vertiv Liebert EXM2
204 pages
Print Icon
To Next Page IconTo Next Page
To Next Page IconTo Next Page
To Previous Page IconTo Previous Page
To Previous Page IconTo Previous Page
Loading...
9.2 Option Introduction
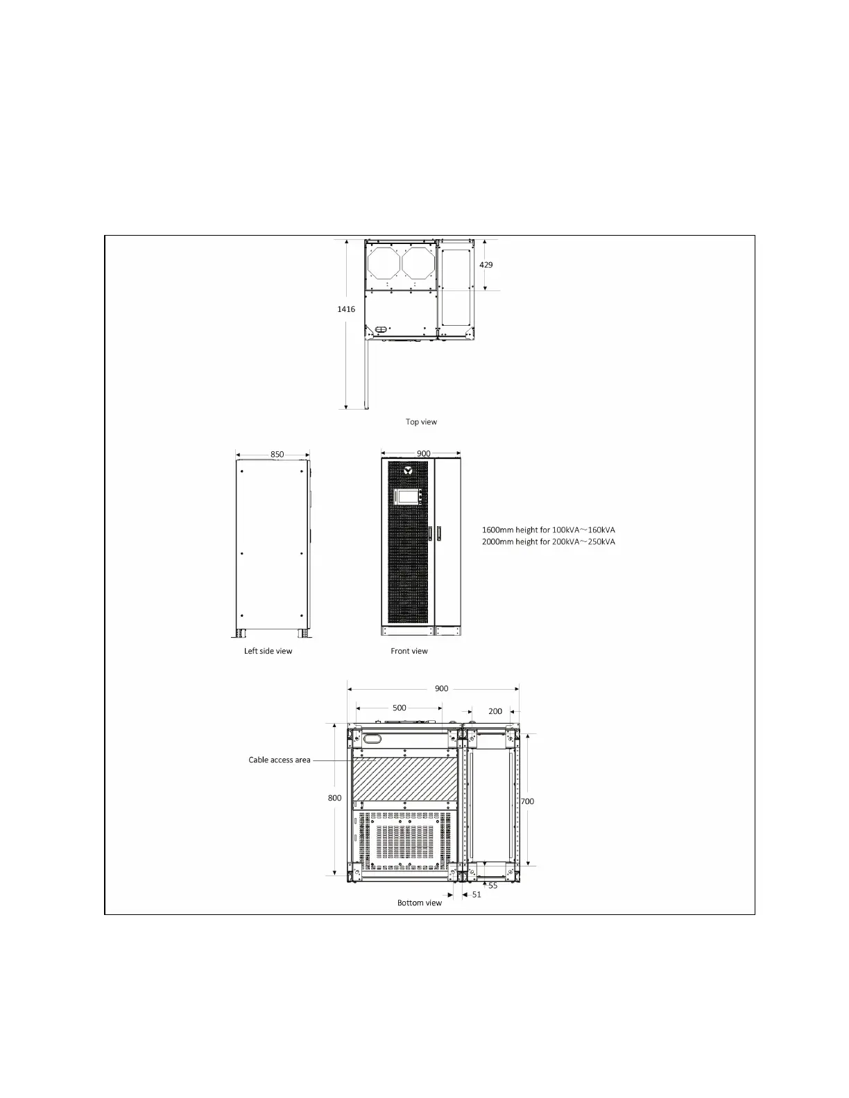
9.2.1 Optional Side Cabinet
Figure 9.1 T op /fron t/side/bottom view of the 100kVA ~ 250kV A UPS (w ith optional side cabinet)
(unit: m m )
9 Options
154
Vertiv™ Liebert® EXM2 UPS User Manual

Table of Contents

Related product manuals