EasyManua.ls Logo

YASKAWA SGMPS - Examples of Servo System Configurations; Connecting to SGDV- F01 A SERVOPACK

YASKAWA SGMPS
400 pages
Print Icon
To Next Page IconTo Next Page
To Next Page IconTo Next Page
To Previous Page IconTo Previous Page
To Previous Page IconTo Previous Page
Loading...
1.5 Examples of Servo System Configurations
1-15
1
Outline
1.5 Examples of Servo System Configurations
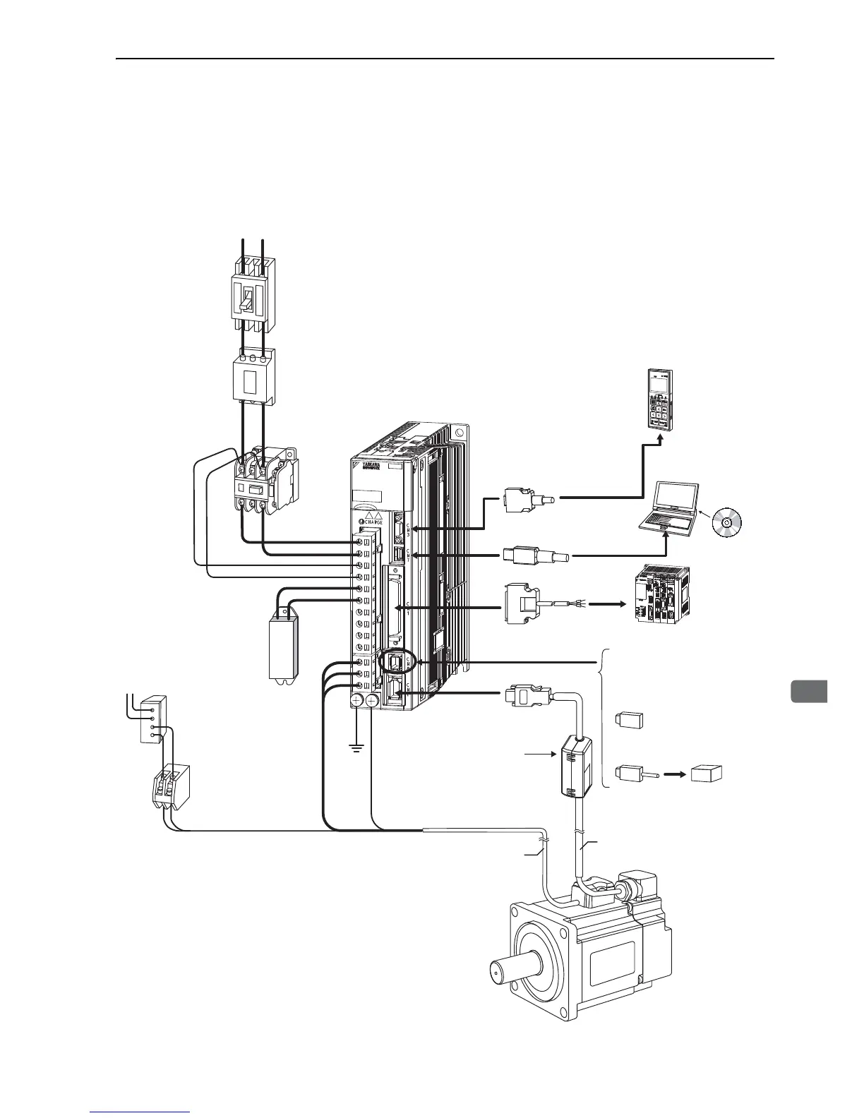
This section describes examples of basic servo system configuration.
1.5.1 Connecting to SGDV-F01A SERVOPACK
∗1. Use a 24 VDC power supply. (not included)
∗2. Before connecting an external regenerative resistor to the SERVOPACK, refer to 3.6 Connecting Regenerative Resis-
tors.
SGDV-F01A
SERVOPACK
SGMJV/SGMAV/SGMPS
Servomotor
Power supply
Single-phase 100 VAC
R T
100 VAC
SGDV-2R1F01ASGDV-2R1F01A
100100
V
Noise filter
Molded-case
circuit breaker
(MCCB)
Protects the power supply
line by shutting the
circuit OFF when
overcurrent is
detected.
Used to eliminate
external noise from
the power line.
Magnetic
contactor
Turns the servo
ON and OFF.
Install a surge
absorber.
Brake power supply*
1
Magnetic contactor
Regenerative
resistor*
2
Used for a servomotor
with a brake.
Turns the brake power supply
ON and OFF.
Install a surge absorber.
Motor main
circuit cable
Encoder cable
Battery case
(when an absolute
encoder is used.)
When not using the safety
function, use the SERVOPACK
with the safety function jumper
connector (JZSP-CVH05-E,
provided as an accessory)
inserted.
When using the safety function,
insert a connection cable
specifically for the safety function.
Safety function
devices
I/O signal cable
Connection cable
for digital operator
Connection cable
for personal computer
Digital
operator
Personal
computer
Host controller

Table of Contents

Related product manuals