EasyManua.ls Logo

YASKAWA SGMPS - Page 60

YASKAWA SGMPS
400 pages
Print Icon
To Next Page IconTo Next Page
To Next Page IconTo Next Page
To Previous Page IconTo Previous Page
To Previous Page IconTo Previous Page
Loading...
3.1 Main Circuit Wiring
3-13
3
Wiring and Connection
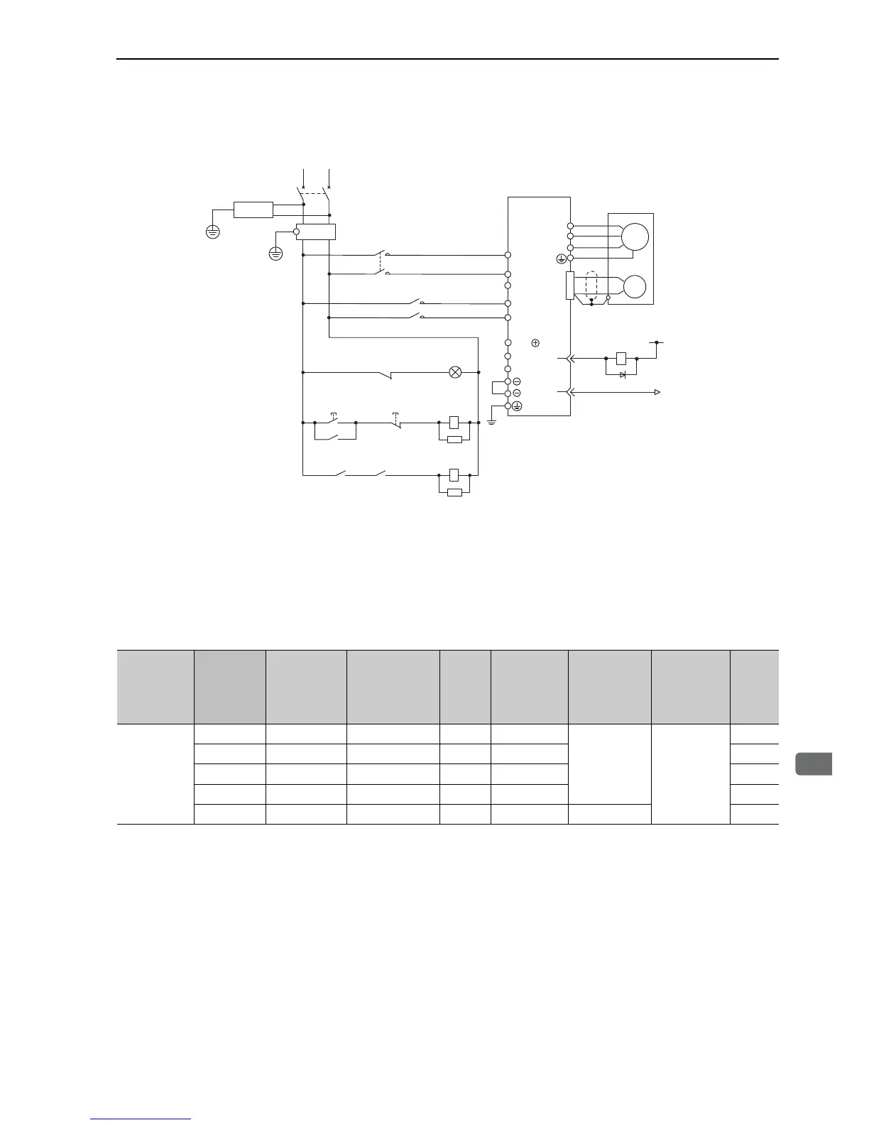
(3) Wiring Example with Single-phase 200 V Power Supply Input
Single-phase 200 V SERVOPACK SGDV-R70A, R90A, 1R6A, 2R8A, 5R5A
(4) Power Supply Capacities and Power Losses
The following table shows SERVOPACK’s power supply capacities and power losses when using single-
phase 200 V power supply.
Note 1. SGDV-R70A, R90A, 1R6A, and 2R8A SERVOPACKs do not have built-in regenerative resistors. If the regener-
ative energy exceeds the specified value, connect an external regenerative resistor.
2. Regenerative resistor power losses are allowable losses. Take the following action if this value is exceeded.
• Remove the lead from the internal regenerative resistor in the SERVOPACK. (SGDV-5R5A)
• Install an external regenerative resistor.
3. External regenerative resistors are options.
1PL
1SA
2SA
3SA
1D:
: Indicator lamp
: Surge absorber
: Surge absorber
: Surge absorber
Flywheel diode
1QF
1FIL
1KM
: Molded-case circuit breaker
: Noise filter
: Magnetic contactor (for control power supply)
2KM: Magnetic contactor (for main power supply)
1Ry: Relay
1KM
1Ry
1PL
1KM
2KM
1SA
1Ry1KM
2SA
L1
ENC
SERVOPACK
SGDV-A
U
V
W
M
0 V
1Ry
ALM+
ALM
31
32
1D
2KM
L3
B2
B3
L2
CN1
1QF
RT
1FIL
+24 V
1
2
L1C
1KM
L2C
3SA
B1/
(For servo
alarm display)
supply ON
Servo power
supply OFF
Servo power
Main Power
Supply
Maximum
Applicable
Servomotor
Capacity
[kW]
SERVOPACK
Model
SGDV-
Power Supply
Capacity per
SERVOPACK
[kVA]
Output
Current
[Arms]
Main Circuit
Power Loss
[W]
Regenerative
Resistor
Power Loss
[W]
Control
Circuit
Power Loss
[W]
Total
Power
Loss
[W]
Single-phase
200 V
0.05 R70A 0.2 0.66 5.2
17
22.2
0.1 R90A 0.3 0.91 7.4 24.4
0.2 1R6A 0.7 1.6 13.7 30.7
0.4 2R8A 1.2 2.8 24.9 41.9
0.75 5R5A 1.9 5.5 52.7 8 77.7

Table of Contents

Related product manuals