EasyManua.ls Logo

YASKAWA SGMPS - Page 86

YASKAWA SGMPS
400 pages
Print Icon
To Next Page IconTo Next Page
To Next Page IconTo Next Page
To Previous Page IconTo Previous Page
To Previous Page IconTo Previous Page
Loading...
3.6 Connecting Regenerative Resistors
3-39
3
Wiring and Connection
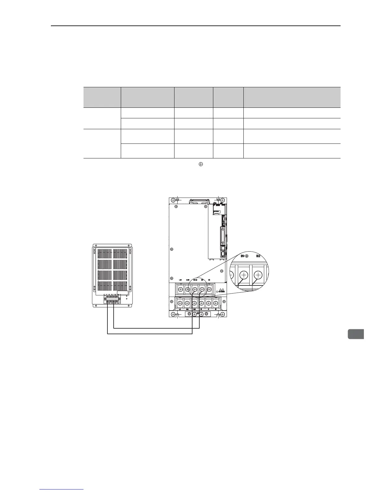
(3) SERVOPACKs: Model SGDV-470A, 550A, 590A, 780A, 210D, 260D, 280D, 370D
No built-in regenerative resistor is provided, so the external regenerative resistor is required. The regenerative
resistor units are as follow:
Connect a regenerative resistor unit between B1/ and B2 terminals.
When using a regenerative resistor unit, set Pn600 to 0W (factory setting).
Main Circuit
Power Supply
Applicable
SERVOPACK Model
SGDV
Applicable
Regenerative
Resistor Unit
Resistance
(Ω)
Specifications
Three-phase
200 V
470A JUSP-RA04-E
6.25
25 Ω (220 W); 4 resistors in parallel
550A, 590A, 780A JUSP-RA05-E
3.13
25 Ω (220 W); 8 resistors in parallel
Three-phase
400 V
210D, 260D JUSP-RA18-E
18
18 Ω (220 W); 2 resistors in series with 2 in
parallel.
280D, 370D JUSP-RA19-E
14.25
28.5 Ω (220 W); 2 resistors in series with 4
in parallel.
Regenerative Resistor Unit
JUSP-RA-E
SERVOPACK

Table of Contents

Related product manuals