EasyManua.ls Logo

ABB PFEA 113 - Dimension Drawing, 3 BSE015955 D0094, Rev. D

ABB PFEA 113
260 pages
Print Icon
To Next Page IconTo Next Page
To Next Page IconTo Next Page
To Previous Page IconTo Previous Page
To Previous Page IconTo Previous Page
Loading...
Tension Electronics PFEA113, User Manual
Appendix B PFCL 301E - Designing the Load Cell Installation
B-14 3BSE029382R0101 Rev C
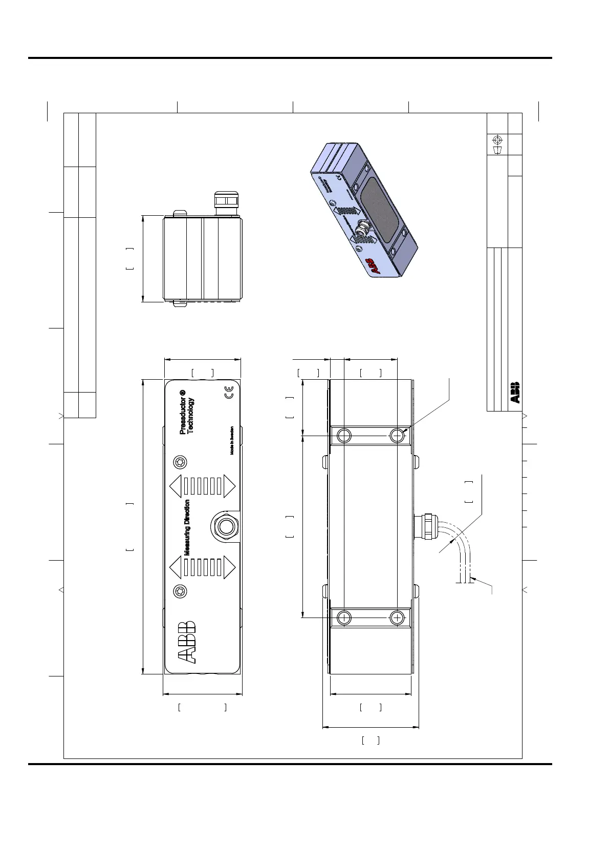
B.12 Dimension Drawing, 3BSE015955D0094, Rev. D
R30 min
1,18
Mass 2,2 kg (without cable).
Dimensions: mm [inch]
Cable length 8 m [315] OD 6,6 [0,26]
REV DESCRIPTION DATE DEPT./INIT.
D
Redrawn in Solid Works, and uppdated. Mass added. Cable
bending radius replace dim 25 mm. min. Pre. rev. tabel on rev. C.
2013-02-25 PAMP/FMGF/LEN
2013-02-25
Cont.sh./
No of sh.
SheetLang. Rev.
Project or order number :
Modify date :
Document number
Appr.
Prep.
Resp.dept
Product type designation :
Product information :
Product family :
2013-02-25 10:32:06
661230 Bansp. mätare PRT100
ABB AB
Håkan F Wintzell
2013-02-25Lars-Erik Nilsson
1
1D
en
Lastcell PFCL301E
Load Cell PFCL301E
Dimension drawing
3BSE015955D0094
PAMP
PAMP
PAMP
FMGF
FMGF
FMGF
Document status:
Approved
Customer reference :
/
/
/
48 ±0,1
1,89 ±0,004
178 ±0,15
7,01 ±0,006
46
1,81
110
4,33
34
1,34
32
1,26
8,5
0,33
49
1,93
58
2,3
8x M8
52
2,05

Table of Contents

Related product manuals