Mass (weight) : App. 50kg
Manufacturing drawing:  3BSE030638D3300
REV DESCRIPTION DATE DEPT./INIT.
F Change to all english version, redrawn. 2009-04-23 PA/FM/GF/JK
G Drawing in S.W. was autocad.                                                   2011-04-13 PA/FM/GF/SF
H Table "Technical material" added 2012-12-18 PA/FM/GF/SF
Technical material
Material description Material specification Material designation
Steel, through
hardened
Hardness 300-400 HB                      
Yield stress > 500MPa (N/mm²)                                                                 
CTE 11-13 μm/m/°C                                                                                                               
Remanent magnetism of 
finished detail must be less 
than 2 Gauss (0-0,2mT) 
34CrNiMo6+QT900  
Toolox 33, Toolox 44
S690(+QT)
W.nr. 1.6582+QT900
ASTM 4340 
or equivalent
Martensitic stainless
Steel
Hardness 300-400 HB                      
Yield stress > 400MPa (N/mm²)                                                                                                   
CTE 11-13 μm/m/°C                                                                                                               
Remanent magnetism of 
finished detail must be less 
than 2 Gauss (0-0,2mT)   
X12CrMoS13+AT
X20Cr13+A
W.nr.1.4005+AT, 1.4021+A
ASTM 416, 420
or equivalent
 
  
 
!
!!
!
"
""
"
 
  
 
!
!!
!
C
duction, use or disclosure to third parties
without express authority is strictly forbidden.
ABB AB
We reserve all rights in this document and
in the information contained therein. Repro-
"
""
"
2012-12-20
Cont.sh./
No of sh.
SheetLang. Rev.
Project or order number :
Modify date :
Document number
Appr.
Prep.
Resp.dept
Product type designation :
Product information :
Product family :  
 
 
661130 Bansp.mätare VPBT/HPBT
ABB AB
Håkan F Wintzell
2012-12-19Sven Fischer
1
1H
en
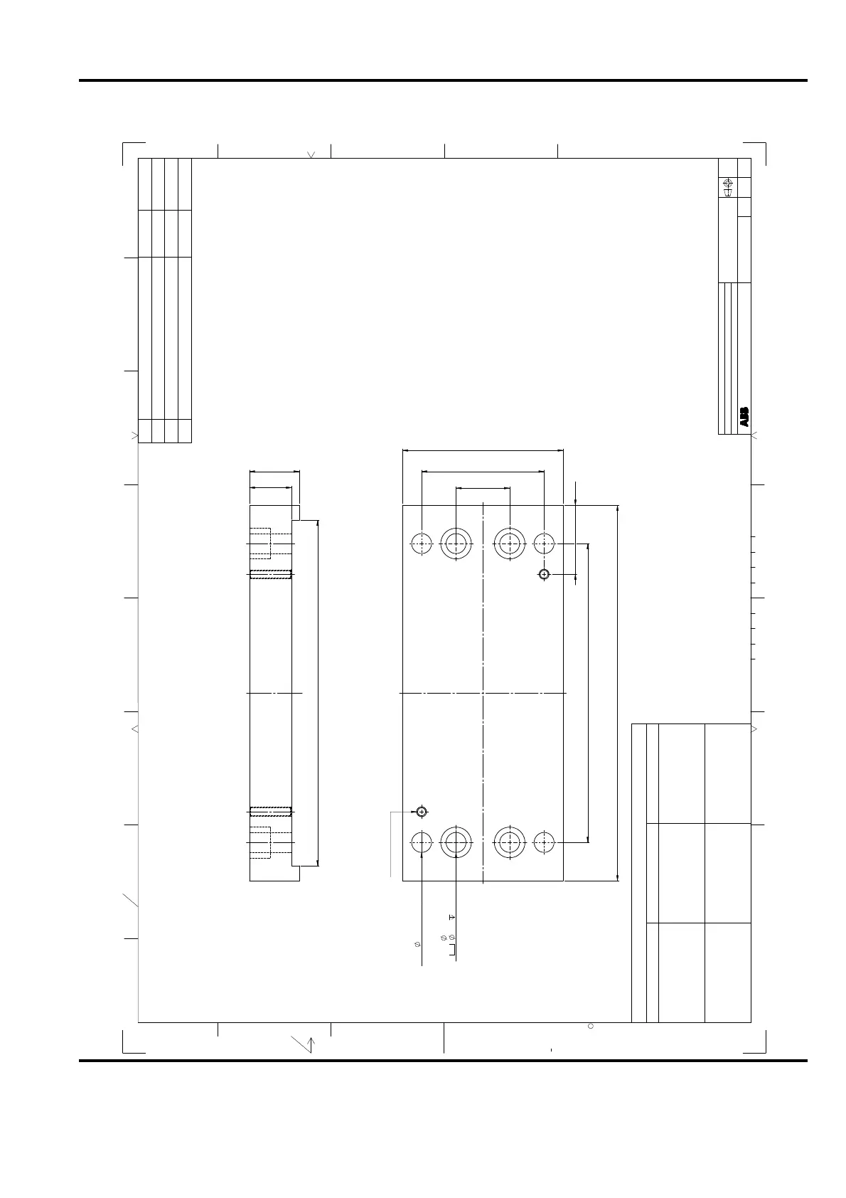
Adapterplatta PFTL 201C/CE
Adapter plate PFTL201C/CE
Dimension drawing
3BSE008917
PA
PA
PA
FM/GF
FM/GF
FM/GF
Document status:
Approved
/
/
/
Customer erference :  
490
for lifting eye bolt
(2x) M12
 40   27
(4x)  26  THRU
(4x) 26 THRU
70
160
210
390
90
55
65
451