EasyManua.ls Logo

ABB PFEA 113 - Assembly Drawing, 3 BSE015955 D0096, Rev. C

ABB PFEA 113
260 pages
Print Icon
To Next Page IconTo Next Page
To Next Page IconTo Next Page
To Previous Page IconTo Previous Page
To Previous Page IconTo Previous Page
Loading...
Tension Electronics PFEA113, User Manual
Section B.13 Assembly Drawing, 3BSE015955D0096, Rev. C
3BSE029382R0101 Rev C B-15
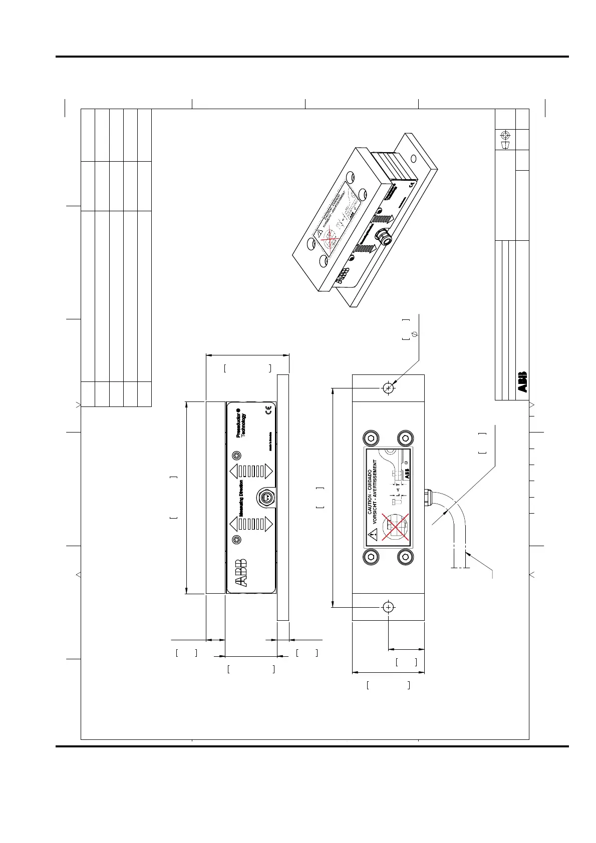
B.13 Assembly Drawing, 3BSE015955D0096, Rev. C
Mass (approx. without cable) : 5 kg.
Dimensions in : mm [inch]
REV DESCRIPTION DATE DEPT./INIT.
- New document 98-04-23 SEISY/AGM/GD
A
Thickness and width upper adapterplate was 11 respectively 76
mm.
2000-01-24 SEAPR/AGB/MH
B
Dimension 48 added. Toelerancs added to dimension 67, 77 178
and 228
2001-10-19 SEAPR/AGB/LEN
C
Redrawn in Solid Works and uppdated. Cable min bending radius
added.
2013-02-25 PAMP/FMGF/LEN
2013-02-25
Cont.sh./
No of sh.
SheetLang. Rev.
Project or order number :
Modify date :
Document number
Appr.
Prep.
Resp.dept
Product type designation :
Product information :
Product family :
2013-02-25 10:13:18
PFCL 301E
661230 Bansp. mätare PRT100
ABB AB
Håkan F Wintzell
2013-02-25Lars-Erik Nilsson
1
1C
en
Assembly PFCL301E
Assembly PFCL301E
Dimension drawing
3BSE015955D0096
PA
PA
PA
FMGF
FMGF
FMGF
Document status:
Approved
Customer reference :
/
/
/
33,5
1,32
67 ±0,5
2,64 ±0,02
2x 9,5
0,37
203
7,99
R 30 min
1,18
Cable length 8 m [315] OD 6,6 [0,26]
11
0,43
48 ±0,1
1,89 ±0,004
18
0,71
178 ±0,5
7,01 ±0,02
77 ±0,3
3,03 ±0,012

Table of Contents

Related product manuals