EasyManua.ls Logo

ABB PFEA 113 - Dimension Drawing, 3 BSE029522 D0001, Rev. B

ABB PFEA 113
260 pages
Print Icon
To Next Page IconTo Next Page
To Next Page IconTo Next Page
To Previous Page IconTo Previous Page
To Previous Page IconTo Previous Page
Loading...
Tension Electronics PFEA113, User Manual
Appendix F PFCL 201 - Designing the Load Cell Installation
F-18 3BSE029382R0101 Rev C
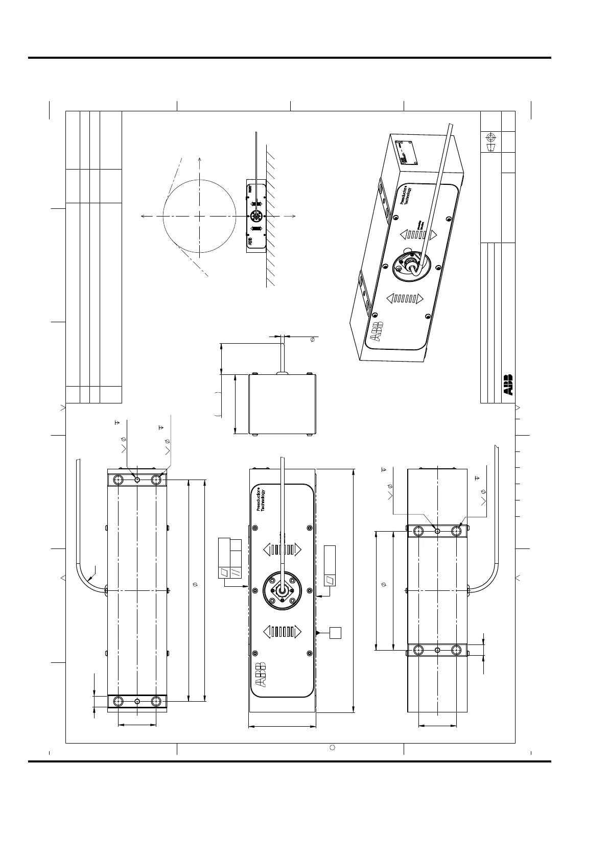
F.14 Dimension Drawing, 3BSE029522D0001, Rev. B
REV DESCRIPTION DATE DEPT./INIT.
- New document 2002-07-04 ATCF/FM/GF/RL
A 124,6 ±0,05 was 125 ±0,1. 2004-11-02 ATPA/FM/GF/LEN
B
View A added. Views in sheet 2 were in sheet 1. Holes Ø8.0 added.
Hole callout M16 adjusted. Hidden edges removed. Geometric
tolerances added. Dimensions adjusted.
2011-12-30 PA/FM/GF/ML
C
ABB AB
without express authority is strictly forbidden.
2012-01-13
Cont.sh./
No of sh.
SheetLang. Rev.
Project or order number :
Modify date :
Document number
Appr.
Prep.
Resp.dept
Product type designation :
Product information :
Product family :
2012-01-04 14:09:00
PFC200
661130 Bansp.mätare VPBT/HPBT
ABB AB
Håkan F Wintzell
2012-01-11Magnus X Lindström
1
1B
en
Lastcell PFCL 201CD
Load cell PFCL 201CD
Dimension drawing
3BSE029522D0001
PA
PA
PA
PA/FM/GF
FM/GF
FM/GF
Document status:
Approved
Customer reference :
/
/
/
= Force component (not measured).
F
v
= Measured component.
R
F
F
v
F
R
(
F
R
)
450
124,6 ±0,05
0,1 CZ
0,1 CZ
0,2 A
A
110
min 58
6,7
70 ±0,4
18 X 90°
4 x M16 25
9 X 90°
2 x Ø8.0 H8 10
220 ±0,2
(holes 8)
220 ±0,4
(holes M16)
20
410 ±0,4
(holes M16)
410 ±0,2
(holes 8)
70 ±0,4
18 X 90°
4 x M16 25
9 X 90°
2 x Ø8.0 H8 10
min R50
20

Table of Contents

Related product manuals