EasyManua.ls Logo

ABB PFEA 113 - Dimension Drawing, 3 BSE008904, Rev. D

ABB PFEA 113
260 pages
Print Icon
To Next Page IconTo Next Page
To Next Page IconTo Next Page
To Previous Page IconTo Previous Page
To Previous Page IconTo Previous Page
Loading...
Tension Electronics PFEA113, User Manual
Appendix G PFTL 201 - Designing the Load Cell Installation
G-18 3BSE029382R0101 Rev C
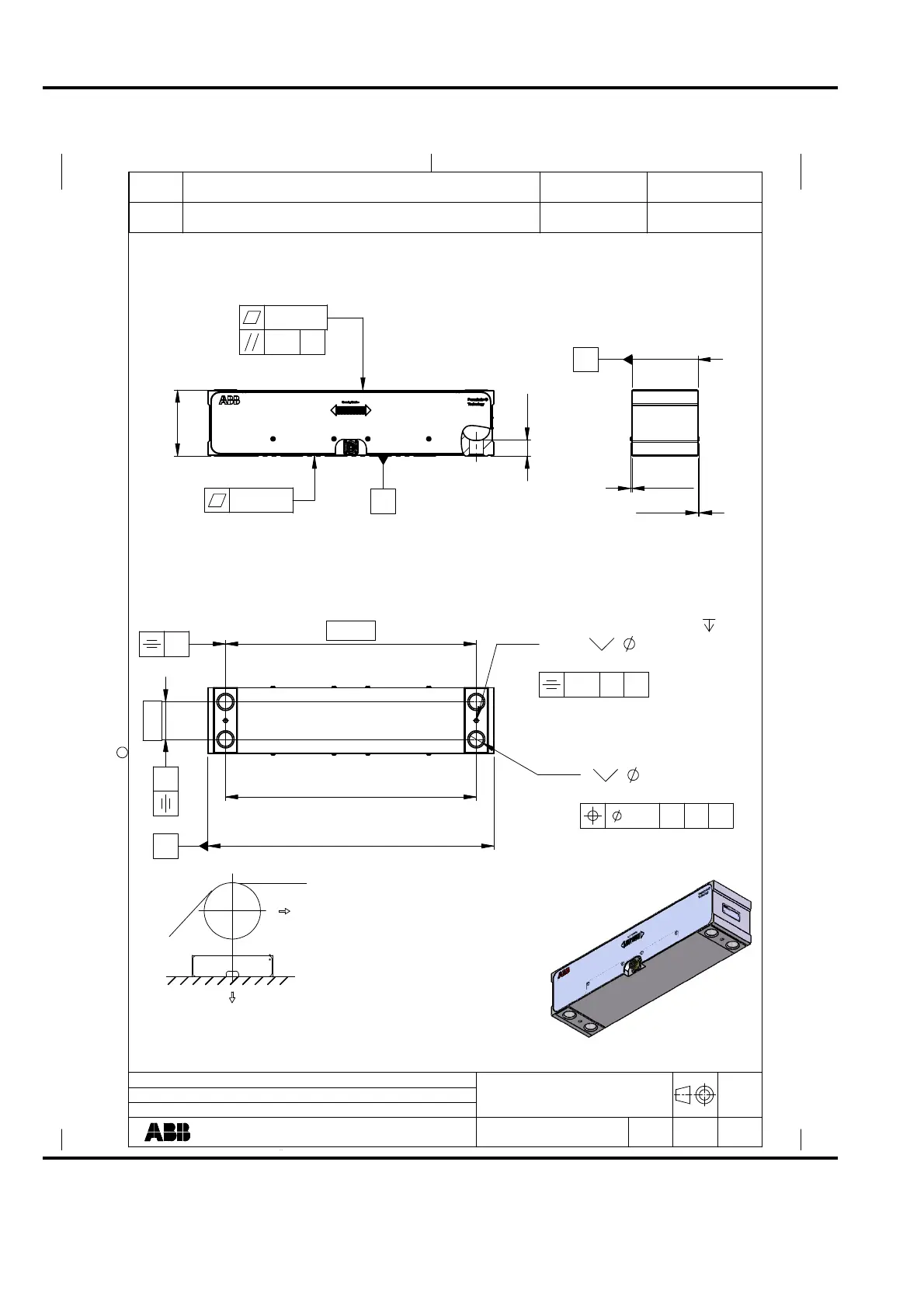
G.14 Dimension Drawing, 3BSE008904, Rev. D
7UDQVYHUVHIRUFHFRPSRQHQW
QRWPHDVXUHG
5
)
)
)
)
9
0HDVXUHGIRUFHFRPSRQHQW
9
5
General tolerances according to SS-ISO2768-m
REV DESCRIPTION DATE DEPT./INIT.
D
Redrawn and uppdated in Solid Works. Previous revision table
remowed, exist on revision C.
2011-12-14 PA/FM/GF/LEN
C
duction, use or disclosure to third parties
without express authority is strictly forbidden.
ABB AB
We reserve all rights in this document and
in the information contained therein. Repro-
PA
PA
PA
3BSE008904
Dimension drawing
Load Cell PFTL201-D
Lastcell PFTL201-D
en
D
1
1
Lars-Erik Nilsson 2011-12-14
Håkan F Wintzell
ABB AB
ä
Resp.dept
Prep.
Appr.
Document number Rev.Lang. Sheet
No of sh.
Cont.sh./
2012-02-15
FM/GF
FM/GF
FM/GF
Approved
Document status:
/
/
/
150 - 0,2
0
36
0,1 CZ
0,1 CZ
0,2 A
A
150 ±0,5
4 max
4 max
C
(For holes 8) 570 ±0,1
650 ±0,3
85
Near Side
9 X 90°,
Ø8.0 0
+0,058
DRILL
10
570
, Near Side
39 X 90°
8 x M36 - 6H
C
0,2 B C
B
0,5 A BC
B

Table of Contents

Related product manuals