EasyManua.ls Logo

BeaconMedaes TotalAlert Infinity - HTM Area Wiring Diagram

BeaconMedaes TotalAlert Infinity
122 pages
Print Icon
To Next Page IconTo Next Page
To Next Page IconTo Next Page
To Previous Page IconTo Previous Page
To Previous Page IconTo Previous Page
Loading...
3-2
TotalAlert Innity™ HTM Medical Gas Notication System
4107 9016 60.01
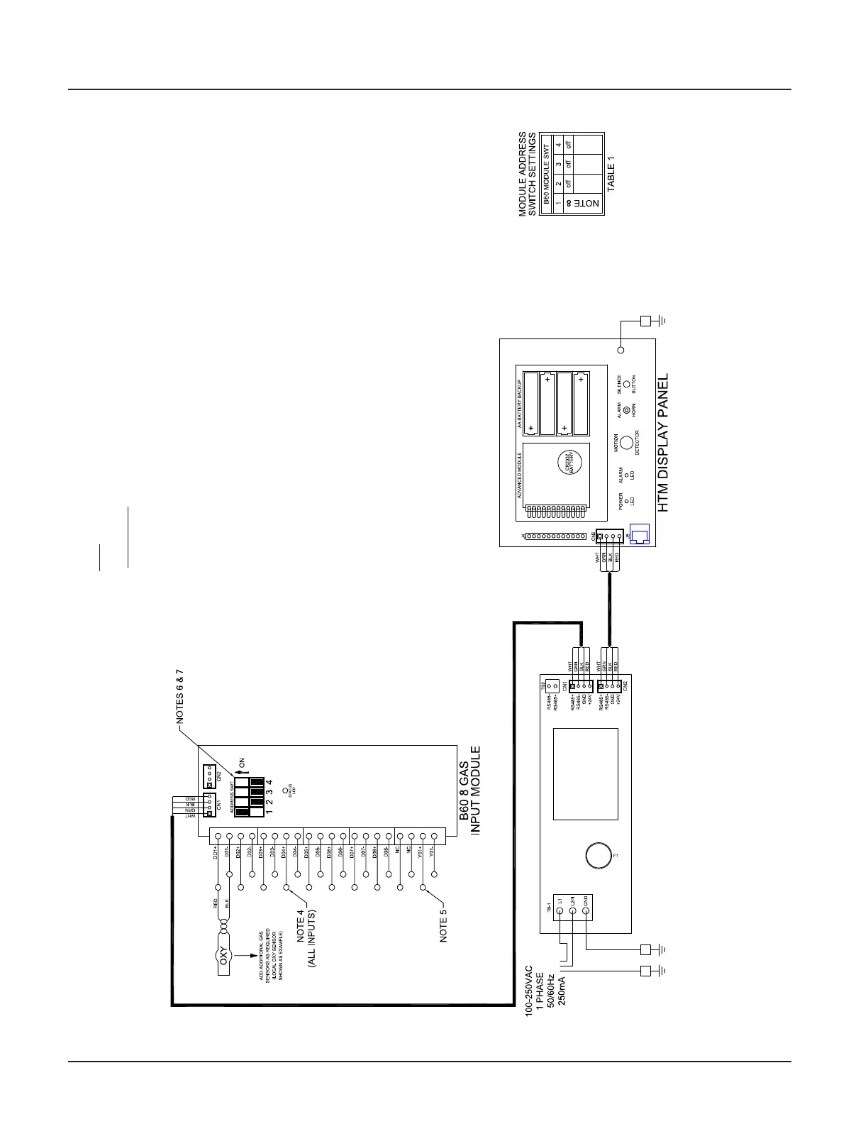
Figure 3.2: Wiring Diagram for TotalAlert Innity™ Area Alarm
FACTORY WIRED
CHASSIS GROUND
ENCLOSURE
GROUND SCREW
NOTES:
1. MAIN DISCONNECT PROVIDED BY OTHERS
2. FIELD POWER WIRING TO BE COPPER RATED FOR 75°C MINIMUM
3. FIELD SIGNAL WIRING TO BE MINIMUM 22AWG
MULTI-CONDUCTOR CABLE MUST BE TWISTED PAIR TYPE WITH SHIELD.
TOTAL CIRCUIT LENGTH NOT TO EXCEED 100 METERS.
4. SIGNAL INPUTS (UP TO 8) FROM GAS SENSOR MODULES.
5. RELAY OUTPUT CONTACT RATED 3A / 30VDC MAX.
6. SEE MODULE LABEL TO SET MODULE ADDRESS (POSITIONS 2, 3 & 4)
7. SET ADDRESS SWT POSITION 1 TO “ON” FOR LAST MODULE IN CHAIN ONLY.
3.2 HTM Area Wiring Diagram

Table of Contents

Other manuals for BeaconMedaes TotalAlert Infinity

Related product manuals