EasyManua.ls Logo

BW Technologies GasAlertMicroClip XT - Replacing the H S, CO, and LEL Sensor

BW Technologies GasAlertMicroClip XT
68 pages
Print Icon
To Next Page IconTo Next Page
To Next Page IconTo Next Page
To Previous Page IconTo Previous Page
To Previous Page IconTo Previous Page
Loading...
49
GasAlertMicroClip
User Manual
Replacing the H
2
S, CO, and LEL sensor
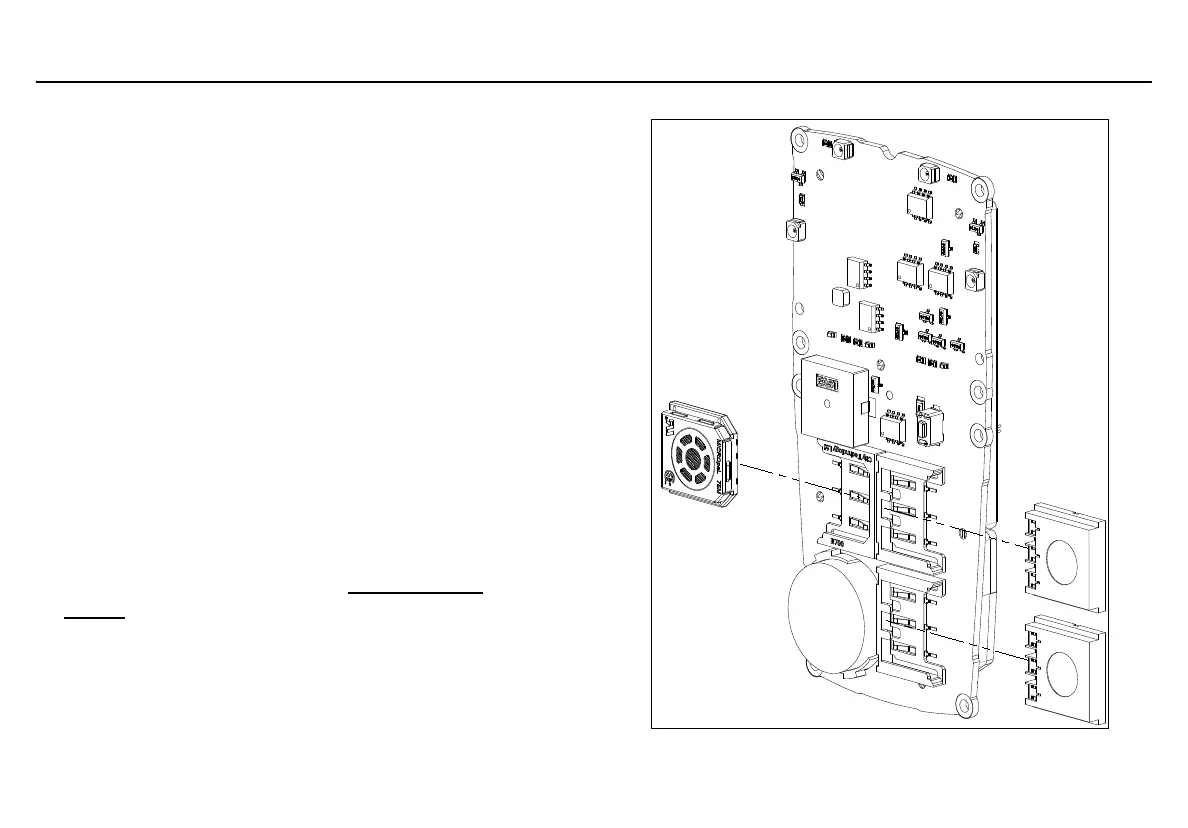
1. Note the placement of the PCB to ensure it is replaced correctly.
Remove the two screws on the PCB. Remove the PCB carefully.
a Caution
Ensure no damage occurs to the battery.
If the sensor filter is stuck to the sensors, remove and replace the
sensor filter into the front shell.
2. Slide the sensors out.
Note
Detectors that are configured for 1, 2, or 3 gases may contain a
dummy sensor in one of the four sensor locations.
3. Insert the new sensor(s). For sensor positioning, refer to
Figure 11.
Figure 11. Sensor Positioning
Note: The Oxygen sens
or is located in the bottom left corner of
the detector.
4. To complete the detector, refer to Reassembling the
detector.

Table of Contents

Other manuals for BW Technologies GasAlertMicroClip XT

Related product manuals