EasyManua.ls Logo

Carrier TruVu VAVB3-E2 - Page 43

Carrier TruVu VAVB3-E2
155 pages
Print Icon
To Next Page IconTo Next Page
To Next Page IconTo Next Page
To Previous Page IconTo Previous Page
To Previous Page IconTo Previous Page
Loading...
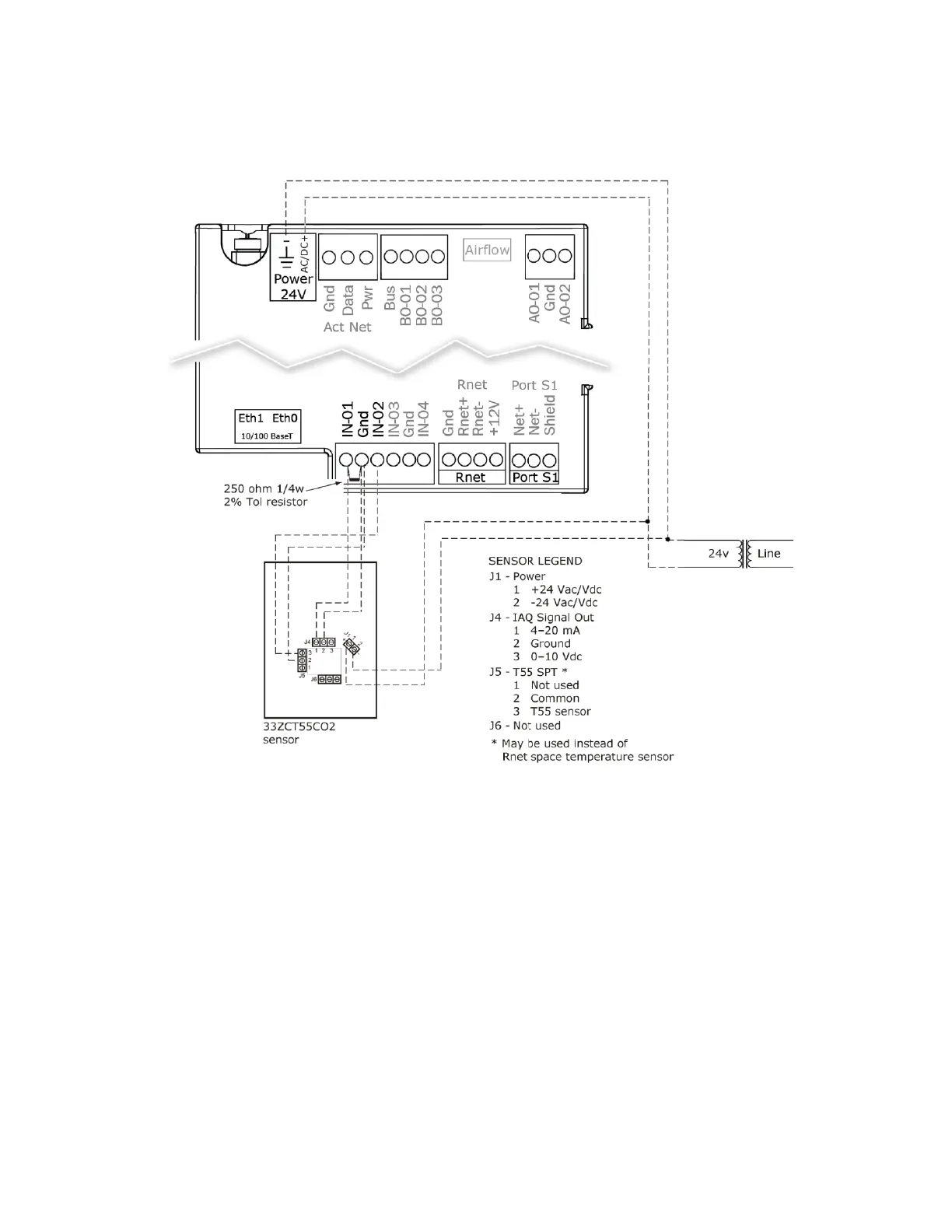
Wiring sensors to the TV-VAVB3-E2's inputs
TruVu™ VAVB3-E2 CARRIER CORPORATION ©2022
Installation and Start-up Guide All rights reserved
37
Wiring diagram for #33ZCT55CO2:

Table of Contents

Related product manuals