EasyManua.ls Logo

Carrier TruVu VAVB3-E2 - Wiring a Field-Supplied High-Torque Actuator to the Analog Output

Carrier TruVu VAVB3-E2
155 pages
Print Icon
To Next Page IconTo Next Page
To Next Page IconTo Next Page
To Previous Page IconTo Previous Page
To Previous Page IconTo Previous Page
Loading...
Wiring equipment to the TV-VAVB3-E2's outputs
TruVu™ VAVB3-E2 CARRIER CORPORATION ©2022
Installation and Start-up Guide All rights reserved
54
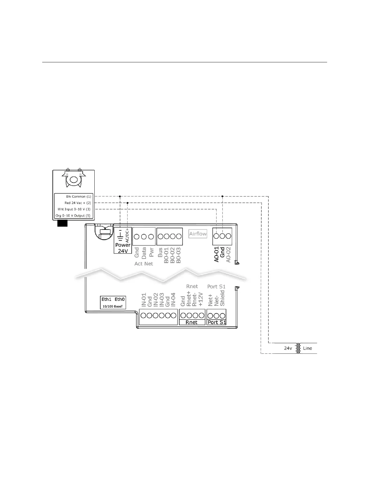
Wiring a field-supplied high-torque actuator to the analog output
You can wire one of the following Belimo actuators to the TV-VAVB3-E2's analog output instead of using the
controller's built-in, 45 in.-lb (4 Nm) actuator.
NMX24-MFT P-10028
90 in.-lb (10 Nm) actuator with 010 Vdc control and 010 Vdc feedback
AMX24-MFT P-10028
180 in.-lb (20 Nm) actuator with 010 Vdc control and 010 Vdc feedback
1 Install the actuator according to the manufacturer's instructions.
2 Wire the actuator to the controller using the diagram below.
NOTE For proper operation and to prevent damage to the devices, use the same polarity for the actuator's power
and the TV-VAVB3-E2's power.

Table of Contents

Related product manuals