EasyManua.ls Logo

Carrier TruVu VAVB3-E2 - Combination Heat (Ducted Electric Heat with Modulating Baseboard Heat) - Fan Box Application

Carrier TruVu VAVB3-E2
155 pages
Print Icon
To Next Page IconTo Next Page
To Next Page IconTo Next Page
To Previous Page IconTo Previous Page
To Previous Page IconTo Previous Page
Loading...
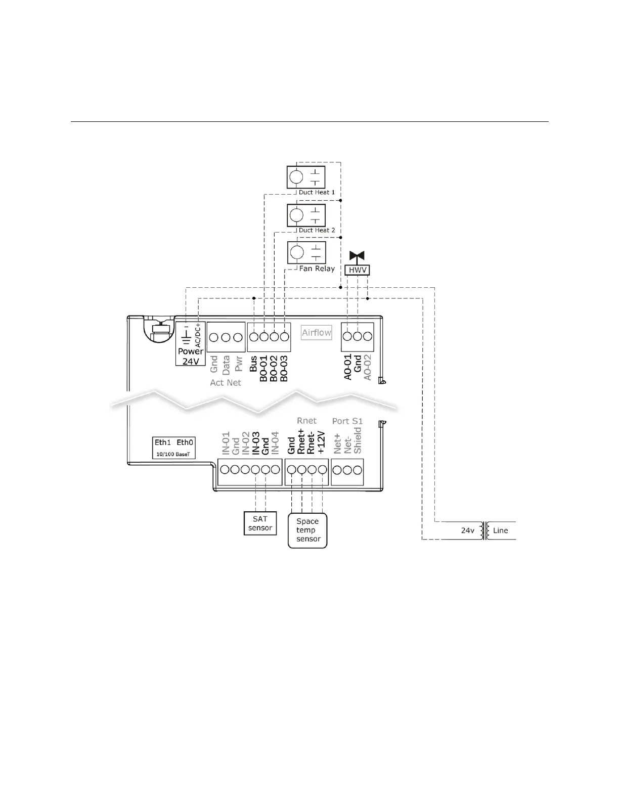
Wiring equipment to the TV-VAVB3-E2's outputs
TruVu™ VAVB3-E2 CARRIER CORPORATION ©2022
Installation and Start-up Guide All rights reserved
51
Combination heat (ducted electric heat with modulating baseboard heat)
- Fan box application

Table of Contents

Related product manuals