EasyManua.ls Logo

Carrier TruVu VAVB3-E2 - Modulating Hot Water (Ducted or Baseboard) - Fan Box Application

Carrier TruVu VAVB3-E2
155 pages
Print Icon
To Next Page IconTo Next Page
To Next Page IconTo Next Page
To Previous Page IconTo Previous Page
To Previous Page IconTo Previous Page
Loading...
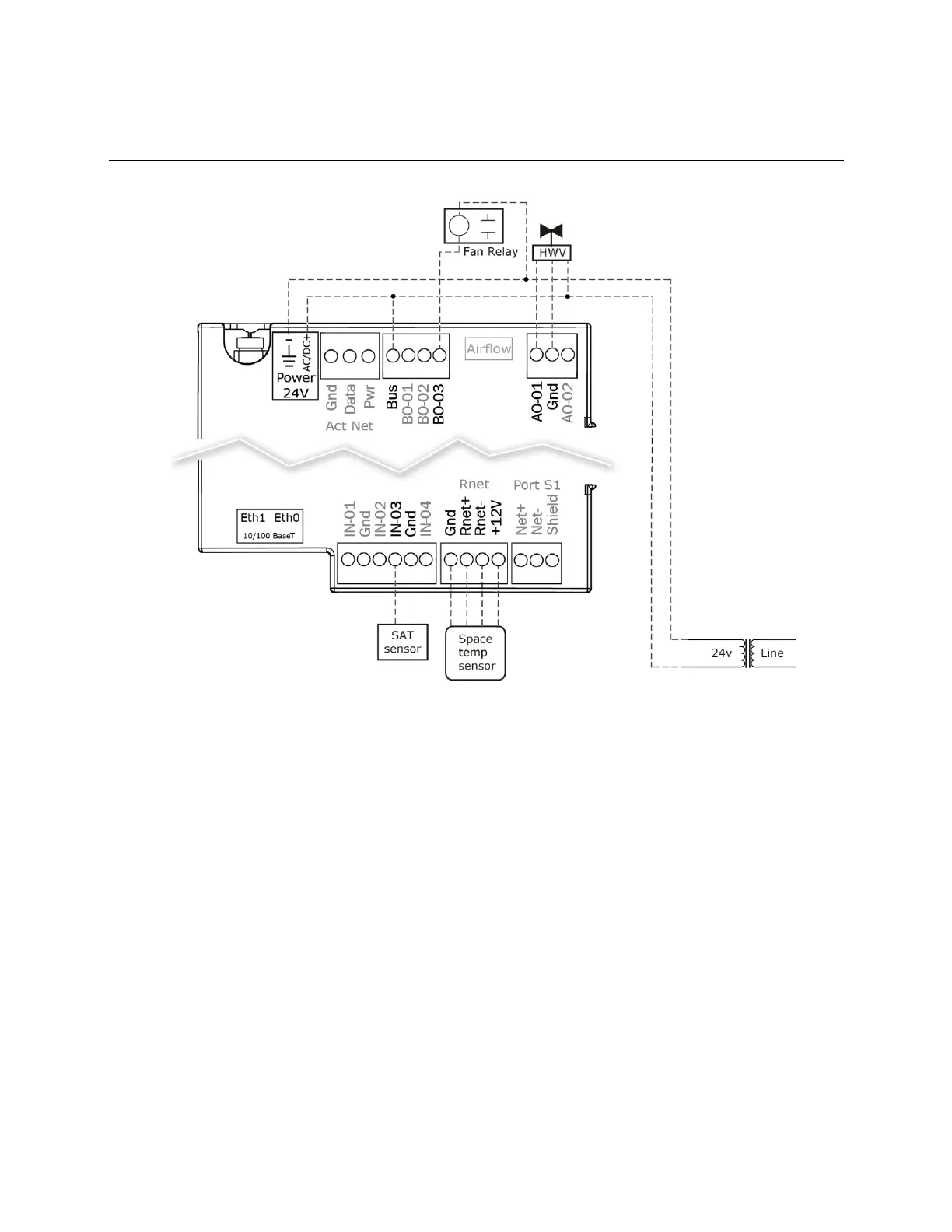
Wiring equipment to the TV-VAVB3-E2's outputs
TruVu™ VAVB3-E2 CARRIER CORPORATION ©2022
Installation and Start-up Guide All rights reserved
50
Modulating hot water (ducted or baseboard) - Fan box application

Table of Contents

Related product manuals