EasyManua.ls Logo

Case 580SR+ - Page 856

Case 580SR+
1068 pages
Print Icon
To Next Page IconTo Next Page
To Next Page IconTo Next Page
To Previous Page IconTo Previous Page
To Previous Page IconTo Previous Page
Loading...
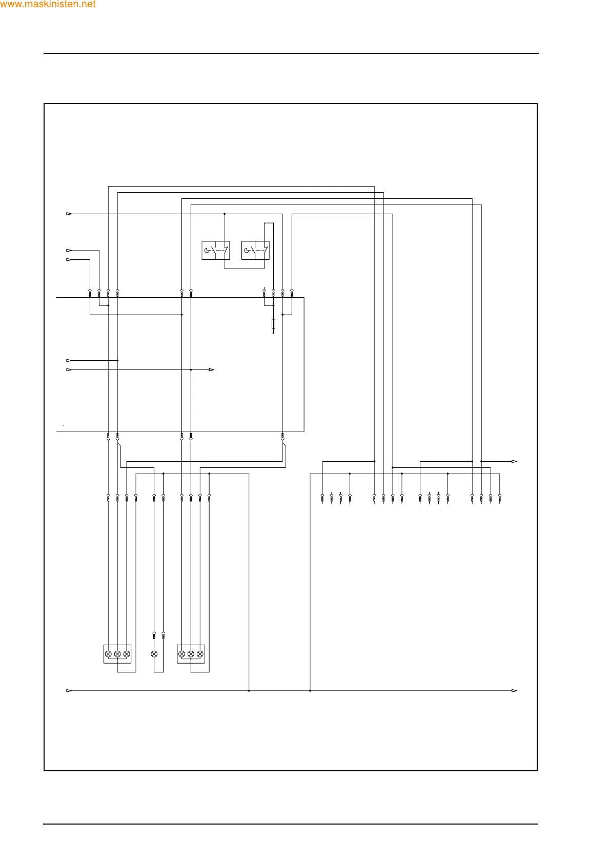
28 SECTION 55 - ELECTRICAL SYSTEM
REAR LIGHT LINE DIAGRAM
F27483
KC
N1
G1
8.3
52
8.3
X8
1
N1
X42
42
A1
13
N1
X52
423
L1
1
31
4.5
N1
31
6.1
A1
G1
R-N1
N1
X37
4321
N1
R-N1
G-N1
L1
X48
4321
XC1
2
XC1
8
B/R1
R1
R-N1
2.5
R-N1
R-N1
XC5
17
XC1
7
11
4.2
G-N1
XC5
8
L1
4.5
L1
L1
XC5
7
XC4
17
A1
4.5
A1
A1
XC4
19
XC5
9
G1
10
4.2
XC5
6
G1
A1
XC3
20
XC3
12
R-N1
XC3
21
R-N1
G1
A1
7108
R-N1
G1
A1
G-N1
N1
X63
1
X63
2
N1
N1
G-N1
93
G-N1
XC3
13
R-N1
G-N1 G-N1
L1
462
R-N1
N1
L1
XC3
2
L1
5
H6
R
58
59c
31
S32 S33
+15
F1C
10A
H4
L
58
59c
31
H5
www.maskinisten.net
Copyright ©

Table of Contents

Related product manuals