EasyManua.ls Logo

Case 580SR+ - Page 871

Case 580SR+
1068 pages
Print Icon
To Next Page IconTo Next Page
To Next Page IconTo Next Page
To Previous Page IconTo Previous Page
To Previous Page IconTo Previous Page
Loading...
SECTION 55 - ELECTRICAL SYSTEM 43
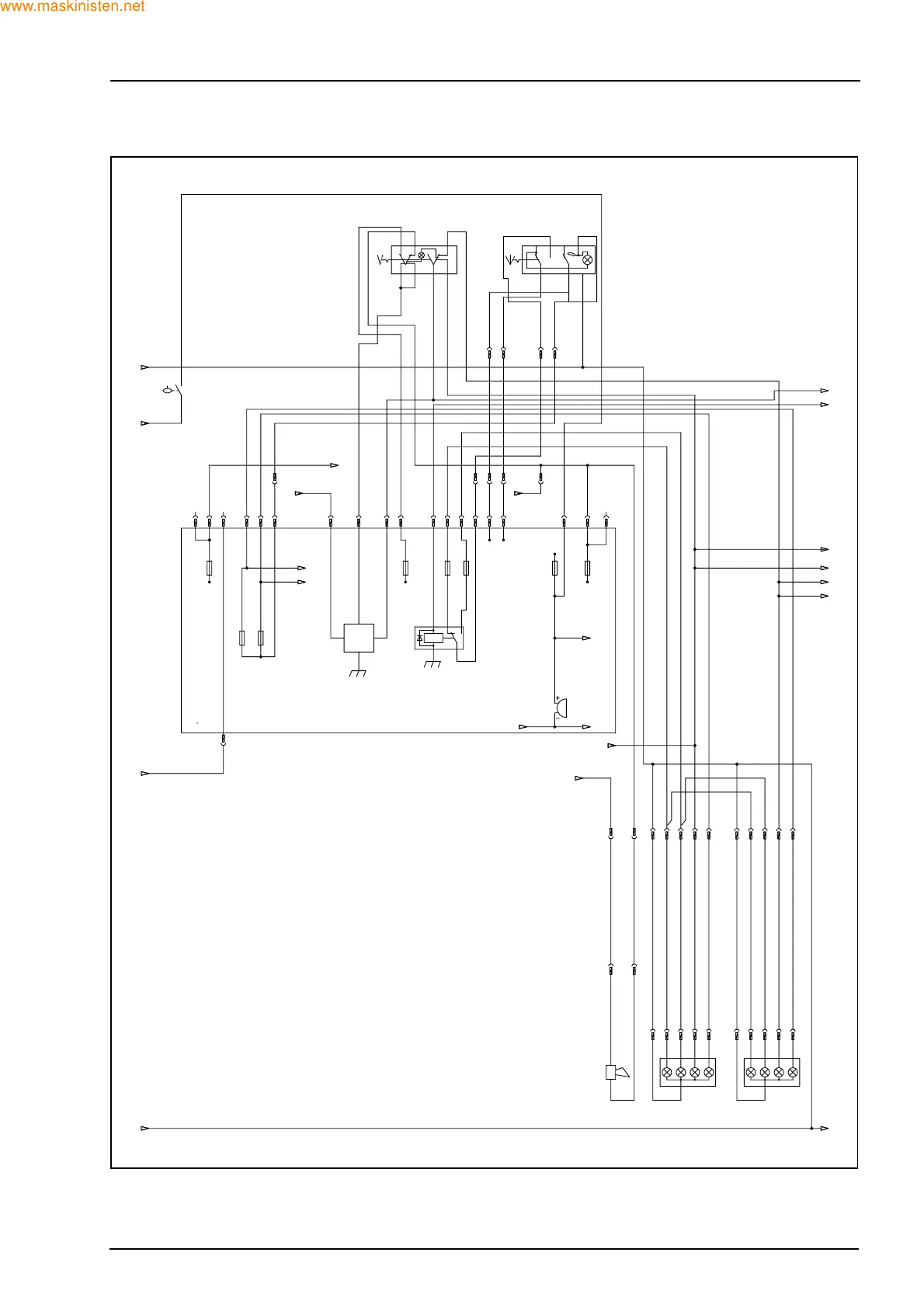
LIGHT LINE DIAGRAM
F27491
L1
7.1
L-N1
7.1
X87
3
X87
6
X87
5
X87
4
C
B
A
S9
4613
52
X13
13
X13
4
X13
11
B/R1
5.1
B-V1
1.5
X13
12
G-N1
A1
7.1
H/R1
1.1
X13
8
V1
1.5
X21
1
X21
4
X21
5
X21
2
X21
3
X22
1
X22
4
X22
5
X22
2
X22
3
G-R1
1.5
X101
4
X101
5
X101
3
X101
2
X101
1
X89
4
X89
5
X89
3
X89
2
X89
1
H-R1
C1
XA
2
XA
1
K5
86
87a
87
85 30
A-B1
2.3
A-B1
KC
XC5
2
1
0
S42
15/1 30/3 R/7
49/4 30b/2 49a/5 L/6
51
8.3
V-N1.5
7.1
50
7.5
+15
F2A
15A
F5C
15A
F6B
7,5A
+15
XC1
2
XC1
8
H3
56b
56a
R
58
31
11
5.1
10
5.1
A1
5.1
L1
5.1
H2
56b
56a
L
58
31
S31
XC3
10
XC4
13
F7A
10A
+30
G1.5
XC4
21
G1.5
L-N1
XC4
9
H-R1
XC4
3
H-L1
XC4
10
2
1.4
R2.5
R1.5
XC4
4
XC4
2
R1.5
R2.5
R/N1
XC1
4
XC1
10
XC4
16
XC4
20
R/N1
XC4
8
V-N1.5
H-N1.5
XC4
5
N1
2.5
H-N1.5
XC4
18
XC4
6
G1
H1
V1
A1
G1
L1
V1
H1
N1
C1
2.5
C1
6
H/R1
C1
H/R1
7
H/R1
XC2
3
F5B
10A
+15
F1C
10A
+30 +15
F3A
3A
F3B
3A
HA2
K12
L
+
C
-
31
3.5
31
5.1
BZ1
www.maskinisten.net
Copyright ©

Table of Contents

Related product manuals