EasyManua.ls Logo

CONQUEST 80 - Page 103

CONQUEST 80
130 pages
Print Icon
To Next Page IconTo Next Page
To Next Page IconTo Next Page
To Previous Page IconTo Previous Page
To Previous Page IconTo Previous Page
Loading...
0
I\)
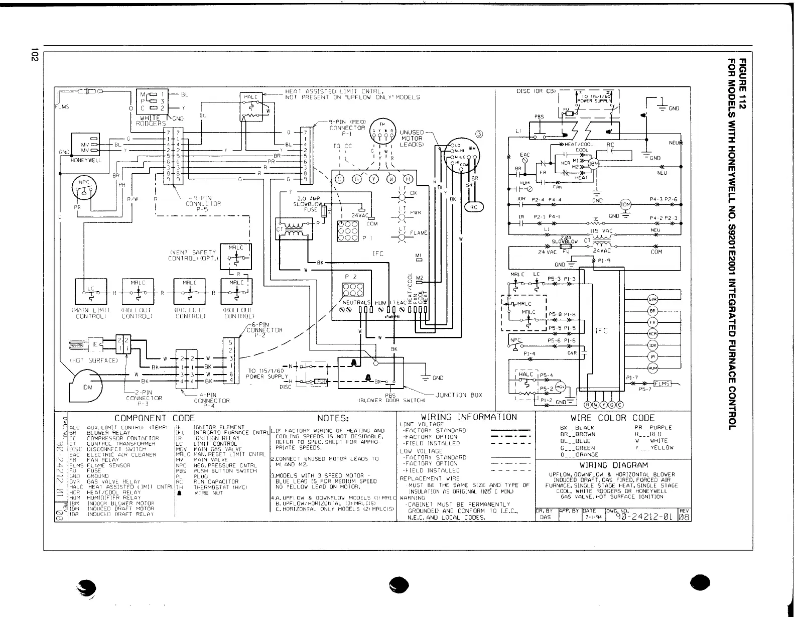
HEAT ASSISTED L!MI-r CNTRL.
NOT PRESFNT
O~~
"UPFLOW ONLY" MODELS
9-P!N !REDI@"
[ONNEC TOR c. r w R
0 UNUSED
P-1 ? ?
MOTOR
LEAOISI
CNO
I I G t w I
I
~
I y I R
TO cc I I I
/ I \ I_
®
R
BL
\ I OK
LT
y
ff
BK
~
I l
I
®
\ I PWR
·------------7
--f<-
L T
*LAM[
w
IVENl SAfTTY
Cl
BK-1--------
"f±lffi',EE
p 2
)8881
M2
NEUTRALS
&&
BK
-::- GNO
Ml
IM,~li" LIMIT
(fl0LL0UT IPO; LOUT !ROLL OUT
CON TROLi LUN TROLi
CON TROLi
cmHROLI
5-PIN
CONNECTOR
1'"2
w
BK
TO 115/1/60
- N
-t0-J-.o-- t
w
POW[l1 SUPPLY
~
BK -H u
DISC -
- P I N
PBS -----__JUNCTION BUX
(BLOWER DOOR SWITCHl
P-4
CJ WIRING INFORMATION
WIRE
COLOR
CODE
,:
COMPONENTCODE
NOTES:
LINE VOLTAGE
ll
IGN!TOR ELEMENT
~
ALC AUX. LIMIT CONfH(JI (TEMPI
BK BLACK
PR PURPLE
7 BR
BLOWER RELAY
-FACTORY STANDARD
CNTR
I. IF FACTORY WIR[NG OF HEATING ANO
!FL IN TRGRTO FURNACE
BR
BROWN
R
RED
COOLING SPEEDS 15 NOT DESIRABLE.
-FACTORY OPl ION
~
cc
COMPRESSOR CONTACTOH
IR
!GN!l!ON RELAY
BL
BLUE
w WHITE
REFER TO SPEC. SHEET FOR APPRO-
-FIELD INSTALLED
:'.:"✓
LJIS( UlSCONNFC:T ':-iWlTU-
1
JJ CT
CUN rROL TRANSFORM[R
LC
LIMIT CONTROL
PRIATE SPEEDS.
G
GRElN
YELLOW
MGV
MAIN GAS VAL VE
LOW VOL
lAGE
MRLC MAN. RESET LIM! I Cl~TRL
t EAC ELEC TR!C AIR CLCANER
a
ORANGE
-FACTORY STANDARD
l"\J .,_.H
ZLONNECT UNUSED MOTOR LEADS 10
__f_:.. FLMS
FLAME SENSOR
MV
MAIN VALVE
PAN RELAY
-F,',CfORY OPTION
Ml ANO M2.
NEG. PRESSURE CNlRL
WIRING DIAGRAM
-f !ELD INS rnLLlO
CJNO
GHOUi<
~.J FJ FUSE
PUSH BUl TON SWITCH
UPFLOW, OOWNFLOW & HORl20NlAL BLOWER
3.MODEL S >IITH 3 SPEED MOTOR
PLUG
REPLACEMENT WIRE
INDUCED DRAFT,
GAS FIRED, FORCED AIR
BLUE LEAD IS FOR MEDIUM SPEED
N GVH
GAS
'
ALVl:.
HLLAY RUN CAPAC ITOR
1 MUST BE THE SAME SIZE AND TYPE OF
FURNACE, SINGLE STAGE HEAT, SINGLE 51 AGE
Q HCR
HEAT/COOL qEl_AY
HAl_C HE Al ASSISTFD l ]Ml f CNTRI NO YELLOW LEAD ON MOTOR.l H
THF_RMOSTAT (H/[I
COOL, WHITE RODGERS OR HONEYWELL
HUM HUMJn!FIFR RELAY
INSULATION AS ORIGINAL 1105' C MIN.I
&
W [ RE NUT
GAS VALVE, HOT SURFACE IGNITION
4.A. UPF! OW & OOWNFLOW MODELS (ll ~RL C WARNING
::0 !Bf":
IN[)OUH 8LUWER MOTOH l:L UPFLOW/HORILLJrJfAL (]J MRl.C(SI
CAB I Ne l MUS l BE PERMANENTLY
~
!OM
H~DlJ[ED
RAFT
MOTOR
C. HORIZONTAL ONLY MODELS 121 MRLCISI
OR. BY APP. BY DATE OWG. NO. REV
GROUNOUJ AND CONFORM IO l.E.C.,
Gl !OR
INDUCUJ llflAFl RELAY
DAS 7-1-94
90-242)2-0[ 08
N.E.C. ANU LOCAL CODES.
co
DISC WR CBI -
I
NEU
NEU
l
R
P2-4 P -3 P2-6
'I
~
~
.
lR P2-l P4-\ IE GNO -=- P4-2 P2-3
'Tl 'Tl
o-
:ng
3:::n
om
c::::
~N
en
:E
=i
:c
:c
0
z
m
~
m
r-
r-
z
p
en
co
N
C
...
m
8
N
...
~
C>
:n
~
m
C
'Tl
C:
:n
z
J>
0
m
0
0
z
-I
:n
0
r-
J
? PIN
CO!lNEC TOR
P- 3
I\___ 4
CONNECTOR

Table of Contents