EasyManua.ls Logo

Emerson Unidrive SPM - Figure 4-4 Layout for an Unidrive SPMD Module Operating on a 3 Phase Supply with SPMU (Uncontrolled) Rectifier and Softstart Circuit

Emerson Unidrive SPM
303 pages
To Next Page IconTo Next Page
To Next Page IconTo Next Page
To Previous Page IconTo Previous Page
To Previous Page IconTo Previous Page
Loading...
Safety
Information
Introduction
Product
Information
System
configuration
Mechanical
Installation
Electrical
Installation
Getting
Started
Basic
parameters
Running
the motor
Optimization
SMARTCARD
operation
Onboard
PLC
Advanced
parameters
Technical
Data
Diagnostics
UL Listing
Information
28 Unidrive SPM User Guide
www.controltechniques.com Issue Number: 3
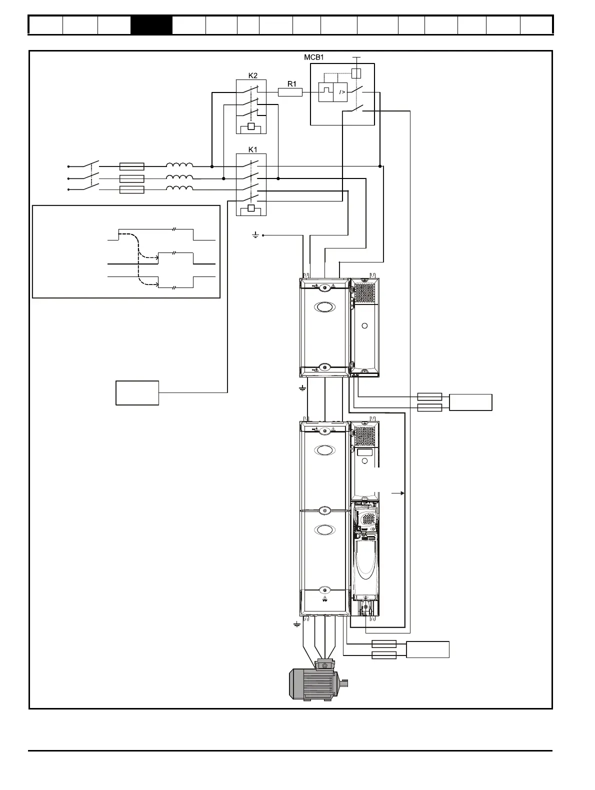
Figure 4-4 Layout for an Unidrive SPMD module operating on a 3 phase supply with SPMU (uncontrolled) rectifier and softstart circuit
L3
L2
L1
Fuses*
INLXXX
Line reactor***
UV
W
+DC
-DC
Rectifier to
inverter
control wiring
Fuses**
24V SPMD
enable
24Vdc****
Fuses**
K1
OPEN
CLOSED
K
2
OPEN
CLOSED
3s
Under Voltage
Drive Healthy
3s
Under
voltage
active
Pr
10.16
Switching sequence for K1 and K2
24Vdc****
*Refer to Table 6-16,
Table 6-17 on page 74
and Table 6-18 on
page 75 for technical
data and part numbers.
**Fuses are needed only
if the power supply has a
current rating of more
than 10A.
***Refer to Table 6-2,
Table 6-3, Table 6-4 and
Table 6-5 on page 68 for
technical data and part
numbers.
****Refer to section
14.1.3 Supply
requirements on
page 267 for supply
requirements.
For softstart circuit
component sizing, refer
to section 6.5 Resistor
sizing for Unidrive SPMU
softstart on page 70.

Table of Contents

Related product manuals