EasyManua.ls Logo

Finsecur Baltic 512 TYPE A - Information Recovery Modules Ref: FI-AT 212 (2 Inputs)

Finsecur Baltic 512 TYPE A
82 pages
Print Icon
To Next Page IconTo Next Page
To Next Page IconTo Next Page
To Previous Page IconTo Previous Page
To Previous Page IconTo Previous Page
Loading...
01-ECMSI-NT002.Rev B40
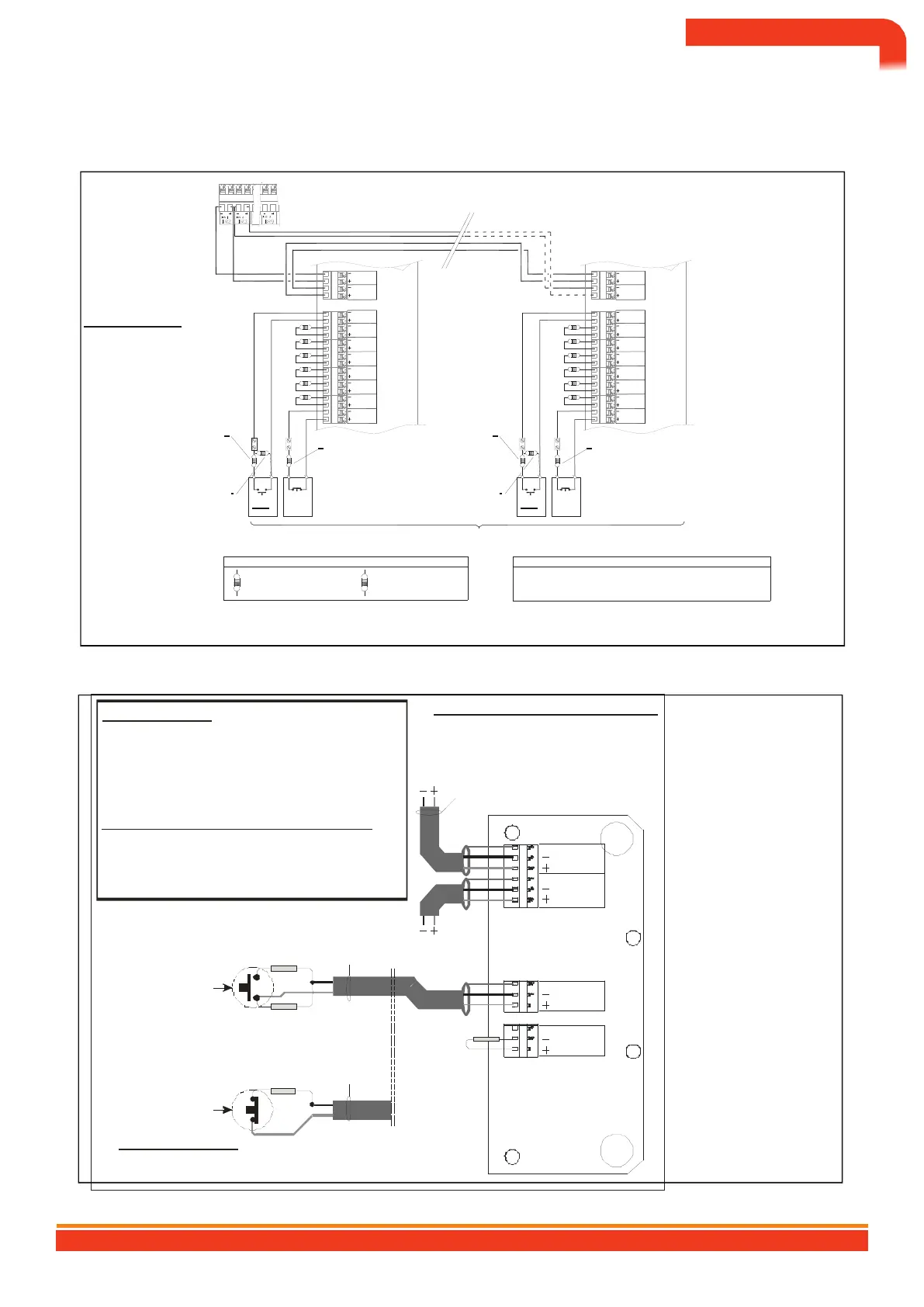
Mo information recovery modules ref: FI-AT 112 (8 th inputs)
"return" cable (if looping back)
"go" cable
Bus entrance Bus entrance
BUS output
BUS output
Example of
connection opposite:
Entrance 1
Entrance 1
Entrance 2
Entrance 2
entry n°1
= alarm
starters n°2 to n°7
= not used
entry n°8
= default
Entrance 3
Entrance 3
RFL x 6
Entrance 4
RFL x 6
Entrance 4
Entry 5
Entry 5
Entry 6
Entry 6
Entry 7
Entry 7
Entry 8
Entry 8
Ra
Ra
RFI
RFI
RFI
RFI
contact
alarm
(NO)
contact of
default
(NC)
contact
alarm
(NO)
contact of
default
(NC)
4 FI-AT modules max. (online new)
16 FI-AT modules max. (on line re-looped)
External resistors
Cable to be used for connecting the DMs
Diameter
Kind
1 pair 8/10emerigid without visor
C2 (flame retardant) - open line
RFL = 10kOhms - 1/4W Ra = 1kOhms - 1/2W
Kind CR1 (fire resistant) - re looped line
A Short Circuit Interface is built into every FIAT-112
Information recovery modules ref: FI-AT 212 (2 inputs)
Recommendation s
Connection for Fi-AT212
!
Comply with the installation rules for SDI NF S 61-970.
!
Maintain a sufficient insulation distance between the cables
connected to the Fi-AT212 and the "high current" cable routing,
in accordance with the recommendations of the standard
16 modules max. online open 32
modules max. relooped online
BUS departure
NF C 15 100 (Low Voltage Electrical Installations).
!
Preferably use 1 pair cable, 8/10th mm, without
(or previous Fi-AT412)
screen.
1 pair 8/10
th e
When using cable (SYT1) with screen
!
The screen must be connected to the terminal
indicated "Screen".
Screen
BUS input
!
The continuity of the screen must be ensured up to the alarm
panel. The grounding of the screen of the BUS cables must
be made in the alarm table.
Screen
BUS output
Resistance
alarm
To Fi-AT412 Next
(or Return BUS)
1k Ohms
1 pair 8/10
th e
Alarm contact
Screen
Entrance n°1
(Normally Open)
Resistance
End of Line
Screen
Entrance 2
OR
10k Ohms
10k-
Resistance
End of Line
10k Ohms
1 pair 8/10
th e
Fault Contact
(Normally Closed)
Connection example :
Input 1 = Alarm or Fault
Input 2 = Not used (free)
BALTIC 512 TYPE A WALL OR RACK BOX CONTROL AND SIGNALING EQUIPMENT 512 POINTS
20

Table of Contents