EasyManua.ls Logo

Finsecur Baltic 512 TYPE A - Page 66

Finsecur Baltic 512 TYPE A
82 pages
Print Icon
To Next Page IconTo Next Page
To Next Page IconTo Next Page
To Previous Page IconTo Previous Page
To Previous Page IconTo Previous Page
Loading...
01-ECMSI-NT002.Rev B40
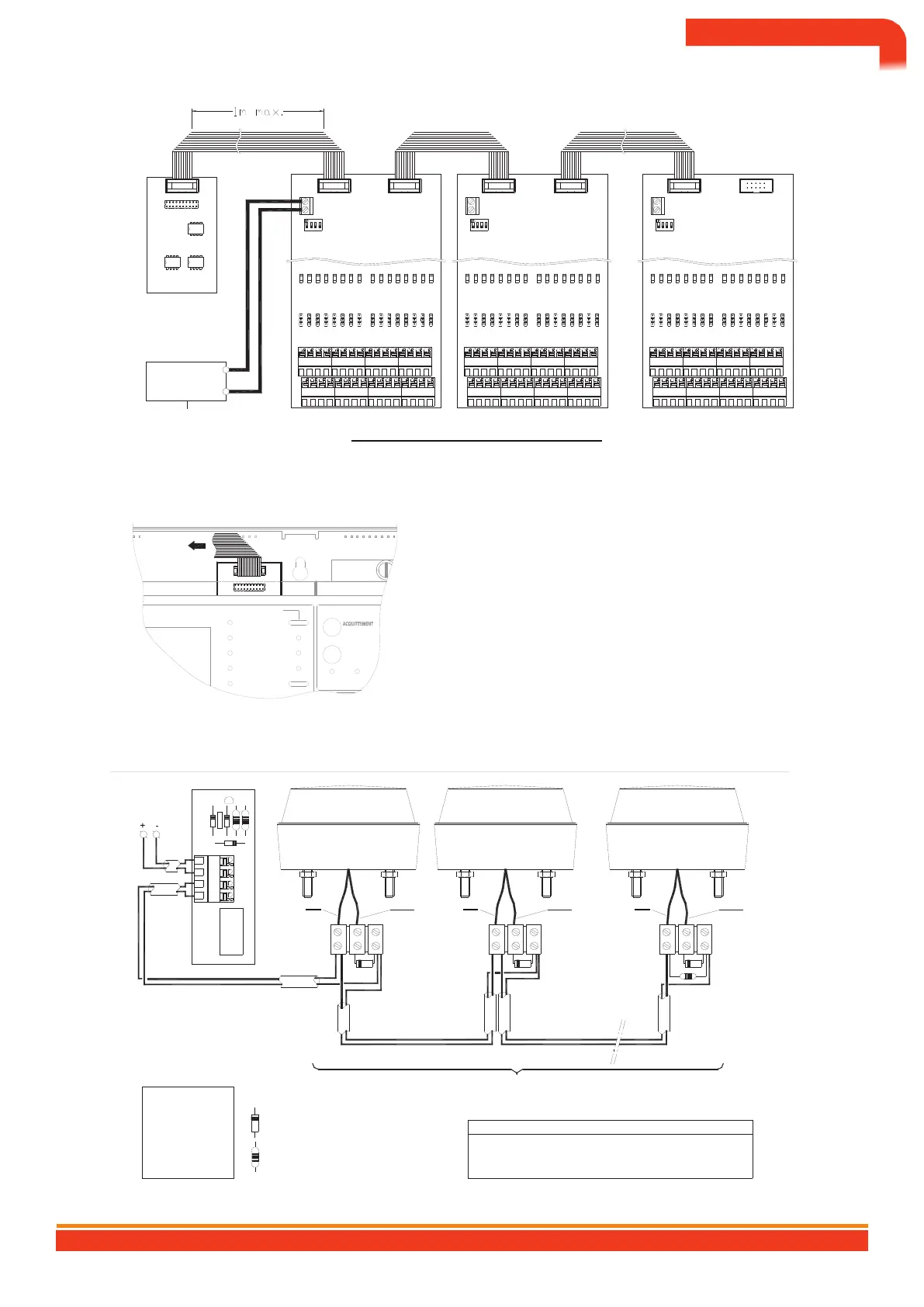
Connect B512-16R external card ion
24 VDC
24 VDC
_
24 VDC
__
+
+ +
Address
0 to 7
Address
0 to 7
Address
0 to 7
Modulus of
communication
opto-isolated
T
R
T
R
T
R
T
R
T
R
T
R
ref: B512-OI2C
1 2 3 4 5 6 7 8 9 10 11 12 13 14 15 16 1 2 3 4 5 6 7 8
9 10 11 12 13 14 15 16
1 2 3 4 5 6 7 8
9 10 11 12 13 14 15 16
-
Ext. 24VDC
rescued+
SECTOR
ONLY THE FIRST BOARD IS SUPPLIED WITH 24V
Position nment of the B512-OI2C module
The B512-OI2C module allows communication between the map
mother ECS-A8 and network card B512-16R ext. It is positioned
under the ECS-A8 motherboard on the 20 pin connector (directed
towards the back of the cabinet) as shown opposite.
to map
B512-16R
external
#1
FIRE
UGA NF S 61-936
TENSION
PROCESS
DEFAULT
SECTOR
DEFAULT
GENERAL
DEFAULT
BATTERY
DHW
EXCEPT
SERVICE
DAY BEFORE
RESTRAINT
DEFAULT
BATTERY
GISC
SYSTEM FAULT
PAINTING
OUT OF ORDER
ALARM
DAY BEFORE
RESTRAINT
ESSAY
PA 1280 C0.5 flashing lights wiring
of the exit
diffusers
sound
of the CMSI
-UGA
+ UGA
- DS
+ DS
Fhe black
Red string
Fhe black
Red string
Fhe black
Red string
30 flashing lights maximum per line with external AES
12 flashing lights maximum for both lines with internal AES
Features
electric
flashing lights
Diode type 1N4004
Voltage: 10 to 55Vdc (not provided)
Cable to be used for connecting the sirens
Cons. : 55mA (12Vdc)
37mA (24Vdc)
30mA (48Vdc)
Section(min.)
Kind
2 x 1.5mm² min.
CR1(fire resistant)
RFL = 10 kOhms - 1/4W
BALTIC 512 TYPE A WALL OR RACK BOX CONTROL AND SIGNALING EQUIPMENT 512 POINTS
66
"EIP" interface
"EIP" interface
1
2
1
2
15
16
15
16
1
2
1
2
15
16
15
16
1
2
1
2
15
16
15
16

Table of Contents