EasyManua.ls Logo

Fujitsu Primergy RX300 S4 - Baseboard

Fujitsu Primergy RX300 S4
267 pages
To Next Page IconTo Next Page
To Next Page IconTo Next Page
To Previous Page IconTo Previous Page
To Previous Page IconTo Previous Page
Loading...
28
Chapter 1 Overview
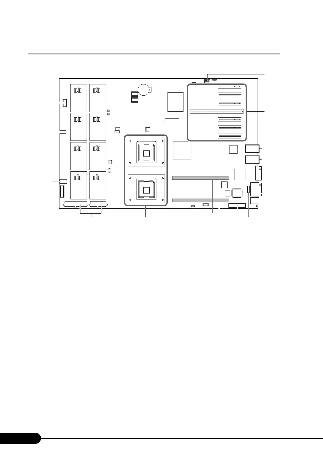
1.3.4 Baseboard
a USB FRONT connector
Connect a cable for the USB connector on the front of the server.
b USB connector
Connect a USB cable when installing an internal USB backup device.
c SATA1 connector
Connect a SATA cable of the CD/DVD drive.
d Power connector
Connect a power supply unit cable.
e CPU sockets
Install a CPU.
f Memory board slot
Install memory board that contains memory module.
g Parallel port connector
Connect a parallel port cable when an optional expansion parallel port is installed.
h Serial port connector
Connect a serial port cable when an optional expansion serial port is installed.
i PCI slot
Install an expansion card.
j Switch block
For the switch block settings, refer to "7.1 Switch Block Settings" (p.182).
[Front]
[Rear]
a
b
c
de fgh
i
j

Table of Contents

Other manuals for Fujitsu Primergy RX300 S4

Related product manuals