EasyManua.ls Logo

Fujitsu Primergy RX300 S4

Fujitsu Primergy RX300 S4
267 pages
To Next Page IconTo Next Page
To Next Page IconTo Next Page
To Previous Page IconTo Previous Page
To Previous Page IconTo Previous Page
Loading...
27
PRIMERGY RX300 S4 User's Guide
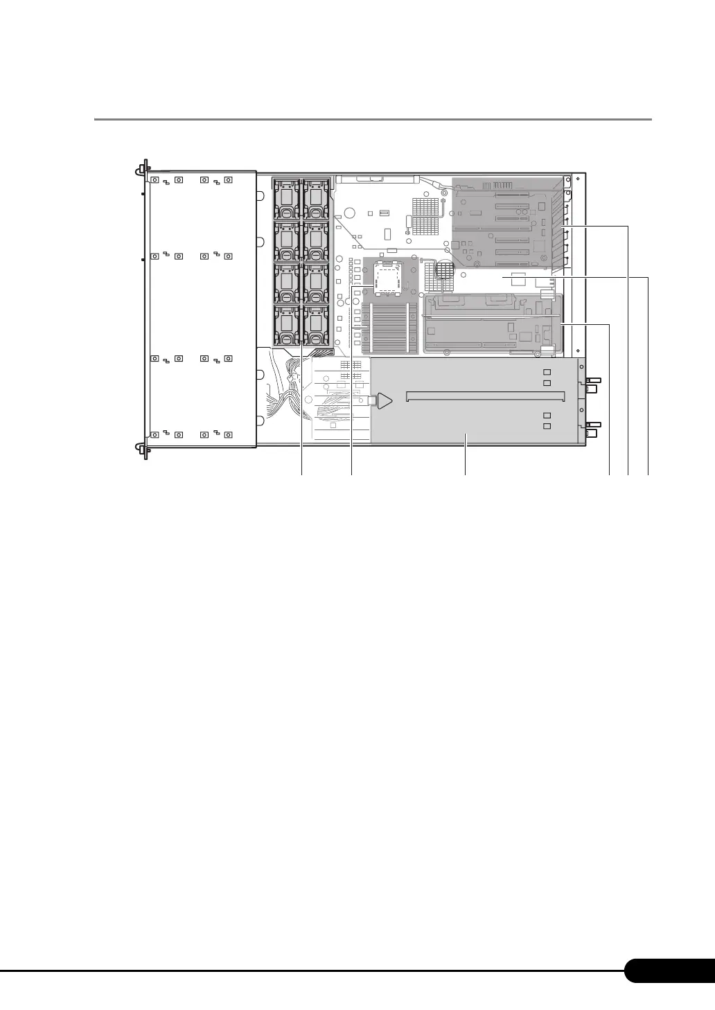
1.3.3 Server (Internal)
a System fan
The system fan has a redundant configuration and a failed system fan can be replaced while the
system is running.
Contact an office listed in the "Contact Information" of the "Start Guide" for the system fan
replacement.
b CPU sockets
Install the CPU. One CPU is installed by default. Up to two CPUs can be installed.
c Power supply unit
Install the power supply unit. One unit is installed by default. Up to two units can be installed.
d Memory board slot
Contains memory board where memory modules are installed.
e PCI slots
Contains extension cards that enhance the server functions. Expansion cards with the PCI bus
interface can be installed in the PCI slots.
The SAS RAID Ctrl is preinstalled in the PCI slot 1.
f Fan duct
[Front]
[Rear]
ab
cd
e f

Table of Contents

Other manuals for Fujitsu Primergy RX300 S4

Related product manuals