EasyManua.ls Logo

Hitachi PXR-D - 13 Schematic Diagrams; Outside Dimensions

Hitachi PXR-D
319 pages
Print Icon
To Next Page IconTo Next Page
To Next Page IconTo Next Page
To Previous Page IconTo Previous Page
To Previous Page IconTo Previous Page
Loading...
Outside Dimensions 13-1
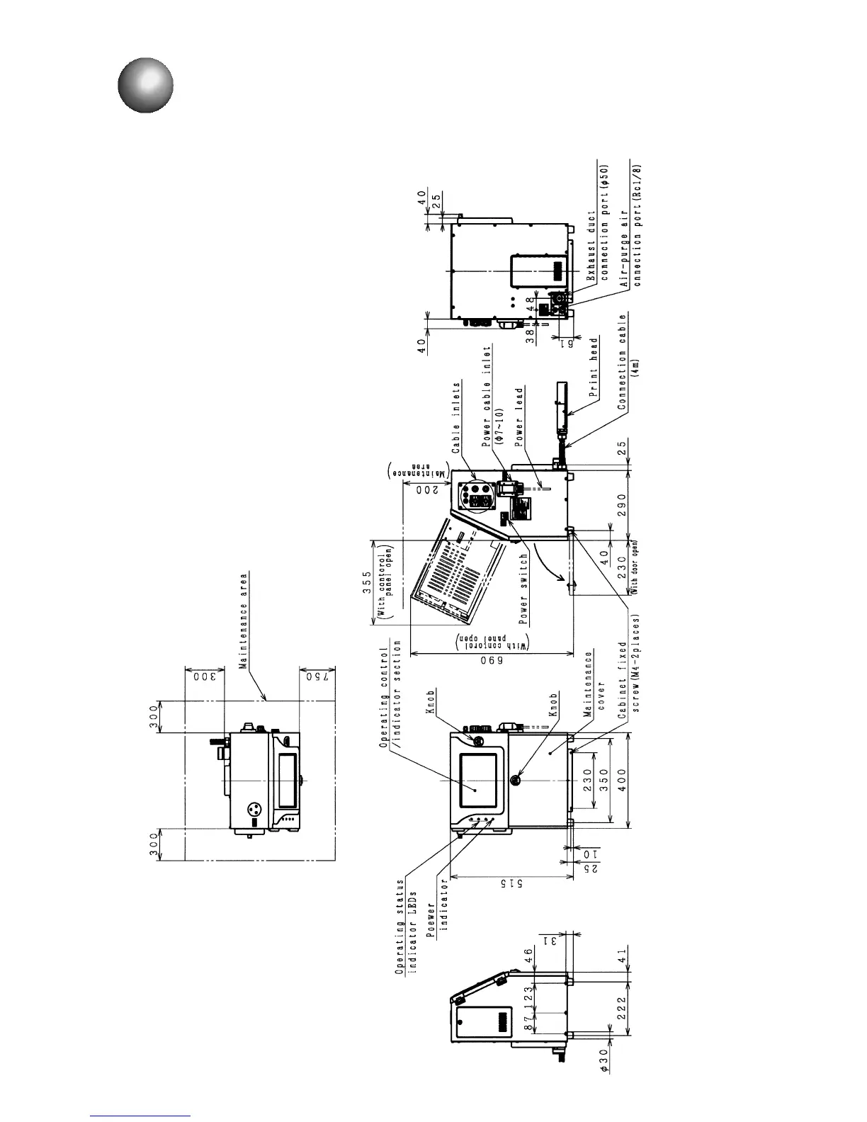
13. Schematic Diagrams
13.1 Outside Dimensions
Fig. 13-1 Model PXR IJ printer outside dimensions

Table of Contents

Related product manuals