EasyManua.ls Logo

HP rp7420 - Right-Front View of HP 9000 Rp7420 Server

HP rp7420
127 pages
Print Icon
To Next Page IconTo Next Page
To Next Page IconTo Next Page
To Previous Page IconTo Previous Page
To Previous Page IconTo Previous Page
Loading...
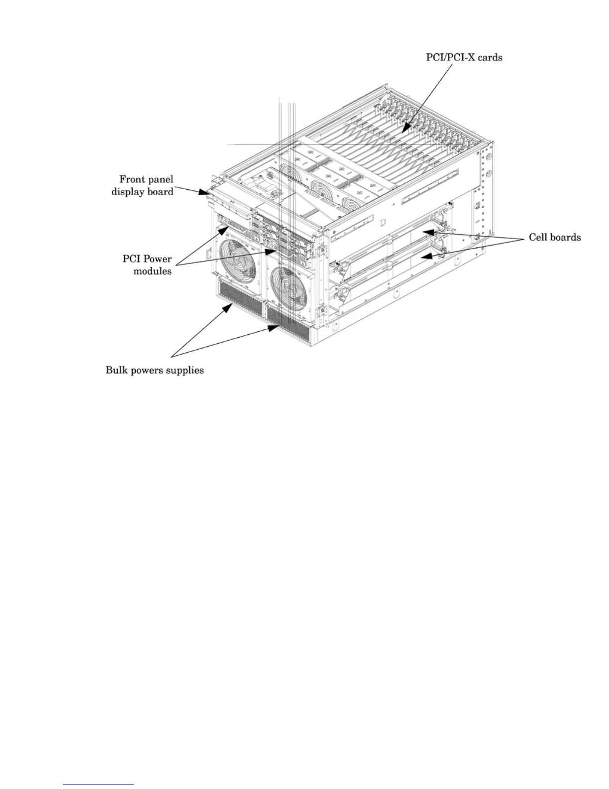
Figure 1-11 Right-Front View of HP 9000 rp7420 server
The PCI-X card section, located toward the rear, is accessed by removing the top cover.
The PCI OLR fan modules are located in front of the PCI-X cards. These six 9.2-cm fans are housed
in plastic carriers. They are configured in two rows of three fans.
The MP/SCSI MP core I/O boards are positioned vertically at the rear of the chassis.
The PCI-X card bulkhead connectors are located in the top rear portion of the chassis.
Four OLR system fan modules, externally attached to the chassis, are 15-cm (6.5-inch) fans. Two
fans are mounted on the front surface of the chassis and two are mounted on the rear surface.
The two hot-pluggable N+1 redundant BPS provide a wide input voltage range. They are installed
in the front of the chassis, directly under the front fans.
A cable harness that connects from the rear of the BPSs to the system backplane provides DC
power distribution.
Access the system backplane by removing the left side cover. The system backplane inserts by
a guide/insertion mechanism using a single large jack screw assembly.
SCSI ribbon-cable assemblies route from the mass storage area to the backside of the system
backplane and to the Procurium PCI MP core I/O card.
Access the cell boards from the right side of the chassis behind the removable side cover.
Server Description 29

Table of Contents

Other manuals for HP rp7420

Related product manuals