EasyManua.ls Logo

Juniper EX2300 Series - Page 120

Juniper EX2300 Series
314 pages
To Next Page IconTo Next Page
To Next Page IconTo Next Page
To Previous Page IconTo Previous Page
To Previous Page IconTo Previous Page
Loading...
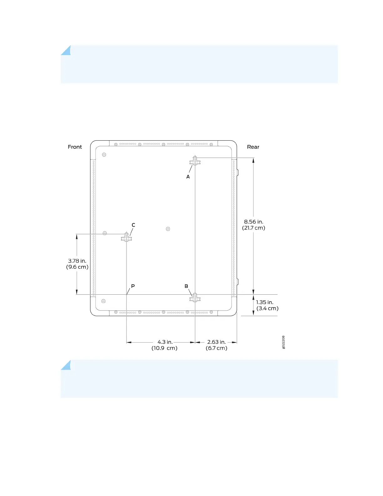
NOTE: Figure 53 on page 111 shows the boom panel of an EX2300-C switch when the
switch is viewed from the top. The internal components and top cover are not shown.
Figure 53: Measurements for Installing Mounng Screws for Mounng EX2300-C Switches Under a
Desk or Other Level Surface by Using Screws
NOTE: Tighten the screws only part way in, leaving about 1/4 in. (6 mm) distance between
the head of the screw and the desk or the level surface.
a. Drill a hole A and install a mounng screw.
b. Drill a hole B at a distance of 8.56 in. (21.7 cm) on a level line from hole A and install a mounng
screw.
111

Table of Contents

Other manuals for Juniper EX2300 Series

Related product manuals