EasyManua.ls Logo

Lenovo ThinkSystem SR645 V3 - Cable Routing for Backplane Signals; Processor)

Lenovo ThinkSystem SR645 V3
242 pages
To Next Page IconTo Next Page
To Next Page IconTo Next Page
To Previous Page IconTo Previous Page
To Previous Page IconTo Previous Page
Loading...
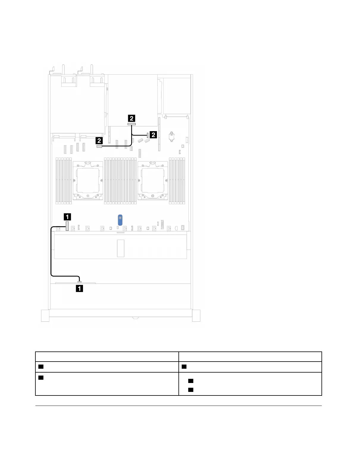
For more information about backplanes supported and their connectors, see “Drive backplane
connectors” on page 157
.
Figure 119. Backplane power cable connection
From To
1 Power connector on the front drive backplane
1 Front backplane power connector
2 Power connector on the rear drive backplane
2 Left: GPU/7mm/Rear backplane power connector
2 Right: 7mm/Rear backplane sideband connector
Cable routing for backplane signals (one processor)
In this section, you can find cable routing of backplane signals when only one processor installed.
166 ThinkSystem SR645 V3 User Guide

Table of Contents

Other manuals for Lenovo ThinkSystem SR645 V3

Related product manuals