EasyManua.ls Logo

Lenovo ThinkSystem SR645 V3 - Page 180

Lenovo ThinkSystem SR645 V3
242 pages
To Next Page IconTo Next Page
To Next Page IconTo Next Page
To Previous Page IconTo Previous Page
To Previous Page IconTo Previous Page
Loading...
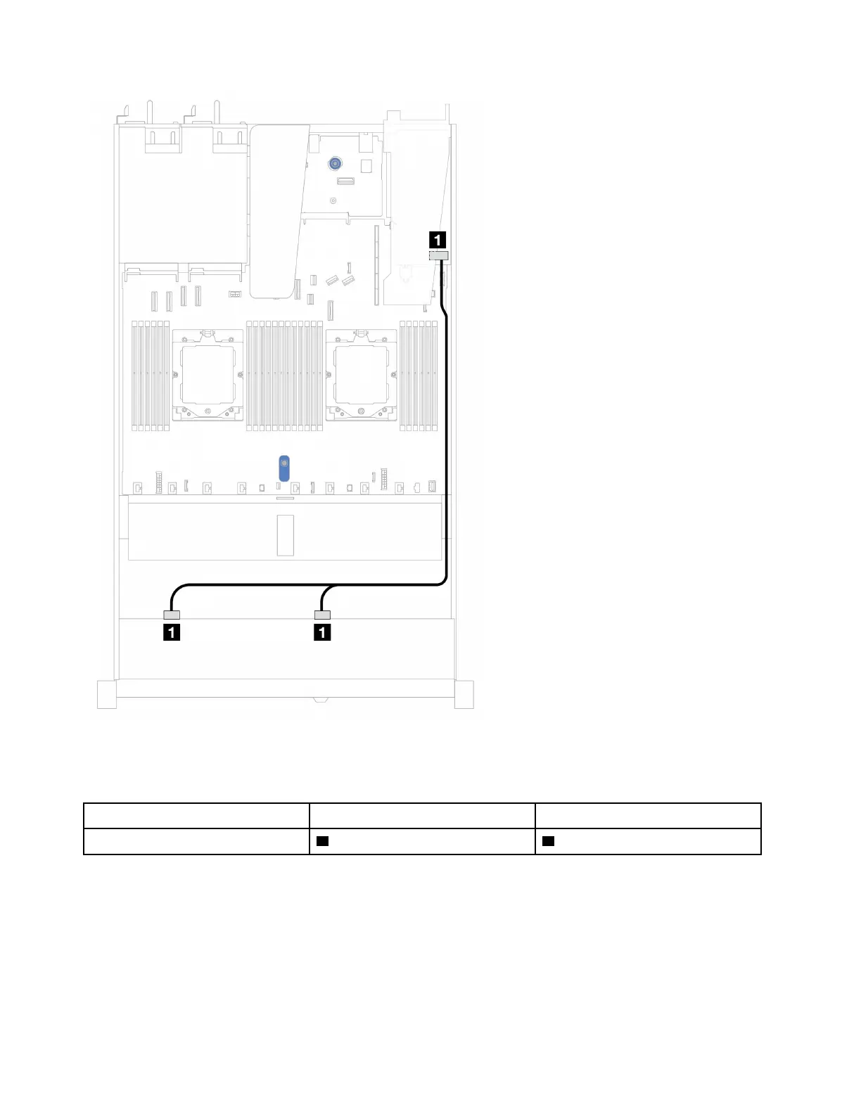
Figure 121. Cable routing for 8 x 2.5-inch front SAS/SATA drive bays with an 8i or 16i SFF RAID adapter (Gen 3 or Gen 4)
Table 21. Mapping between one front SAS/SATA backplane and an SFF HBA/RAID adapter
Backplane From To
Front BP (SAS)
1 SAS 0, SAS 1 1 C0
Cable routing with a CFF RAID adapter
The following illustration and table show the mapping relationship between backplane connectors and a 16i
CFF RAID adapter (Gen 3 or Gen 4).
170 ThinkSystem SR645 V3 User Guide

Table of Contents

Other manuals for Lenovo ThinkSystem SR645 V3

Related product manuals