EasyManua.ls Logo

Lenovo ThinkSystem SR645 V3 - Page 183

Lenovo ThinkSystem SR645 V3
242 pages
To Next Page IconTo Next Page
To Next Page IconTo Next Page
To Previous Page IconTo Previous Page
To Previous Page IconTo Previous Page
Loading...
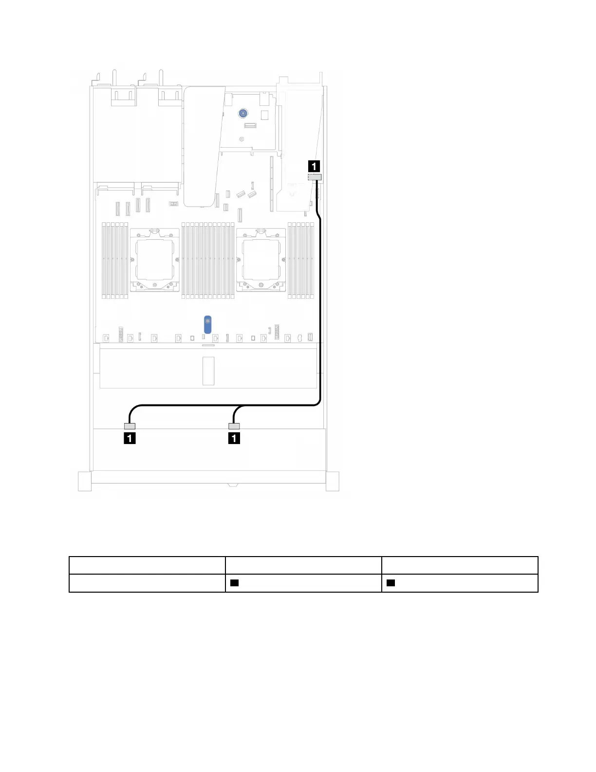
Figure 123. Cable routing for 8 x 2.5-inch front SAS/SATA drive bays with an 8i or 16i SFF RAID adapter (Gen 3 or Gen 4)
Table 23. Mapping between one front SAS/SATA backplane and an SFF HBA/RAID adapter
Backplane From To
Front BP (SAS)
1 SAS 0, SAS 1 1 C0
Cable routing with a CFF RAID adapter
The following illustrations and tables show the mapping relationship between backplane connectors and a
16i CFF RAID adapter (Gen 3 or Gen 4).
Chapter 6. Internal cable routing 173

Table of Contents

Other manuals for Lenovo ThinkSystem SR645 V3

Related product manuals