EasyManua.ls Logo

Lenovo ThinkSystem SR645 V3 - Page 186

Lenovo ThinkSystem SR645 V3
242 pages
To Next Page IconTo Next Page
To Next Page IconTo Next Page
To Previous Page IconTo Previous Page
To Previous Page IconTo Previous Page
Loading...
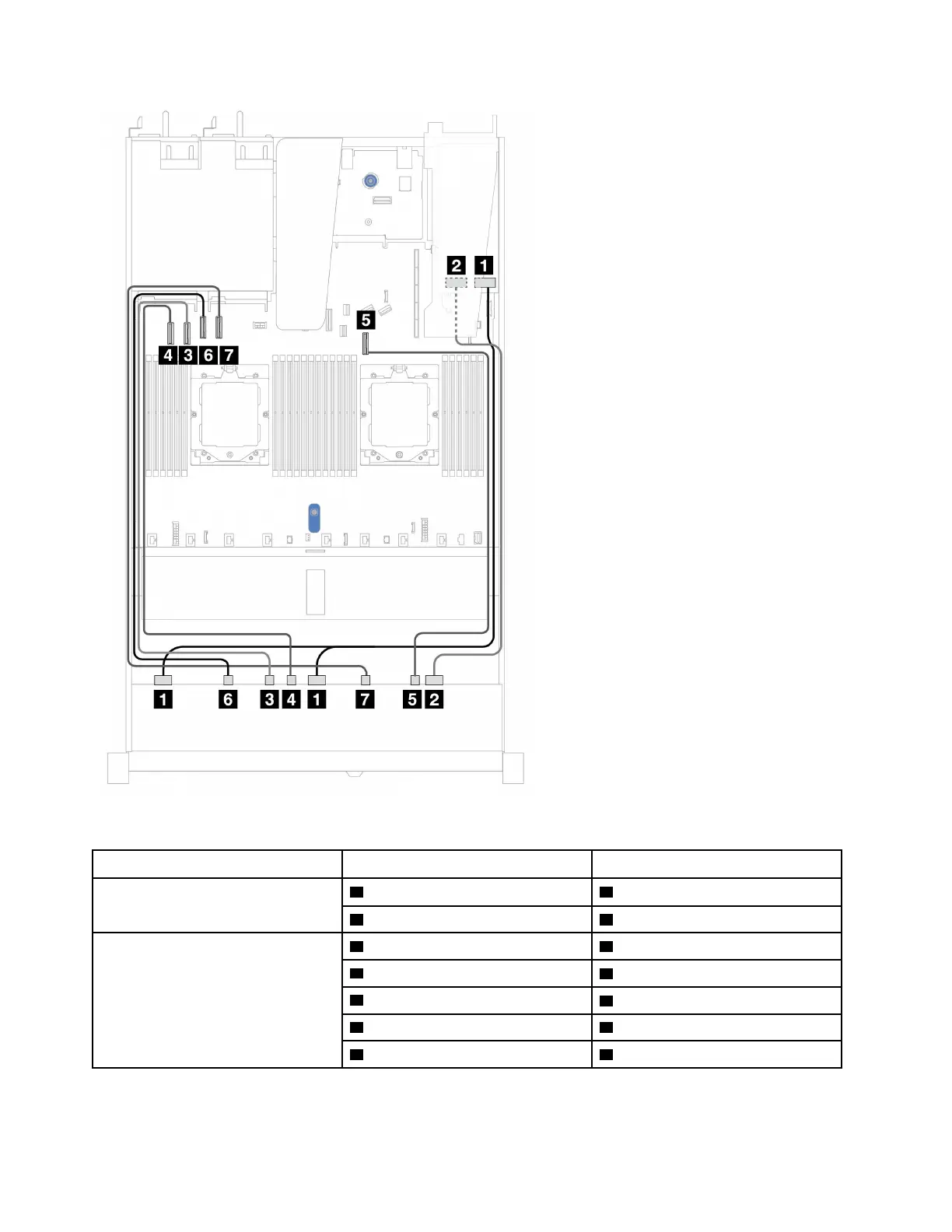
Table 25. Mapping between one front AnyBay backplane and an SFF HBA/RAID adapter
Backplane From To
Front BP (SAS)
1 SAS 0, SAS 1 1 C0
2 SAS 2 2 C1
Front BP (NVMe)
3 NVMe 2–3
3 PCIe 2
4 NVMe 4–5
4 PCIe 1
5 NVMe 8–9
5 PCIe 7
6 NVMe 0–1
6 PCIe 3
7 NVMe 6–7
7 PCIe 4
176 ThinkSystem SR645 V3 User Guide

Table of Contents

Other manuals for Lenovo ThinkSystem SR645 V3

Related product manuals