EasyManua.ls Logo

Levelcom 100 - Multiple Unit Mounting; Figure 10 Multiple Unit Panel Mount Example

Default Icon
101 pages
Print Icon
To Next Page IconTo Next Page
To Next Page IconTo Next Page
To Previous Page IconTo Previous Page
To Previous Page IconTo Previous Page
Loading...
Page 24
©2013 Technical Marine Service, Inc. LC-100 V2.97
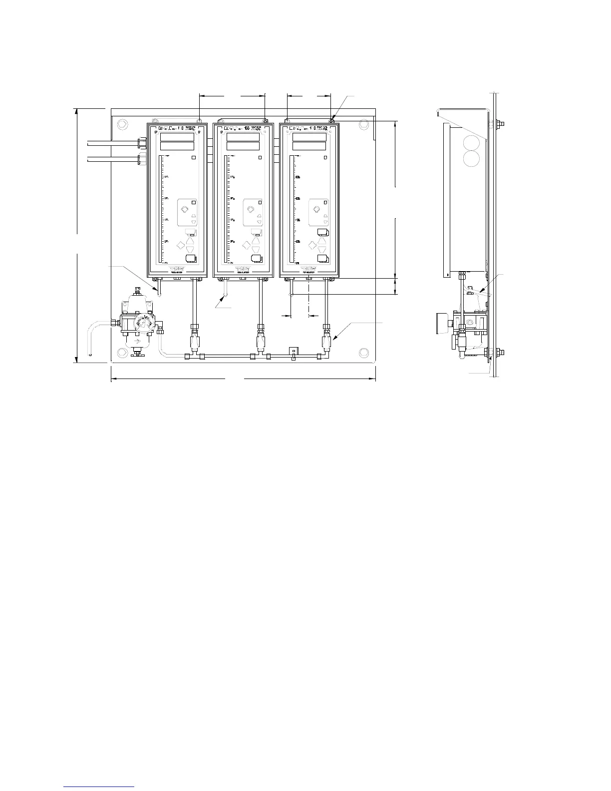
Multiple Unit Mounting
Many installations require multiple LevelCom 100s to be mounted in close proximity to one
another. The LevelCom 100s should be mounted side by side all at the same level. The
LevelCom 100 is exactly 5.5” wide so a 6” center from unit to unit is recommended. A 6”
mounting center will afford 0.5” clearance between units. This clearance will allow easier
access to mounting hardware should it become necessary to remove one unit from the
installation. Figure 10 shows a typical panel with three LevelCom 100s mounted side by
side. The relevant dimensions are shown for reference.
Note that each LevelCom 100 has an individual drain tube. In the example the drain tubes
angle through the plate and exhaust behind the plate. This keeps any expelled liquid away
from the front of the plate keeping the installation clean.
Use the LevelCom 100 Interconnect Kit to create a wiring path between machines. See
Figure 11 for drawings and description of the interconnect kit. The result is a clean efficient
installation.
Figure 10 Multiple Unit Panel Mount Example
ACK
TR O U BL E
HI G H ALA RM
LO W A LAR M
UL L AG E
D
O
W
N
M
O
D
E
UP
S
HO
W
U
NI
TS
A
LT
E
RN
A
T
E
U
NI
TS
ACK
TROUBLE
HIGH ALARM
LOW ALARM
U LLA G E
D
O
W
N
M
O
DE
UP
S
H
O
W
U
N
IT
S
A
L
TE
R
N
AT
E
U
N
IT
S
ACK
TROUBLE
HIGH ALARM
LOW ALARM
UL L A G E
D
OW
N
M
O
D
E
UP
S
HO
W
U
NI
TS
A
LT
E
RN
AT
E
U
NI
TS
TA N K N o .1
6
"
4
"
1
4
.
7
5
"
1
1
/
2
"
1
.
6
"
#10 SCREWS
2
4
"
2
4
"
11/32"
HOL E
PLUG VALVE
DRAIN
TUBE
TANK No .2 TANK N o.3
DRAIN
TUBE
SPACER

Table of Contents