EasyManua.ls Logo

LSIS XBF-AD04A - Page 70

LSIS XBF-AD04A
618 pages
Print Icon
To Next Page IconTo Next Page
To Next Page IconTo Next Page
To Previous Page IconTo Previous Page
To Previous Page IconTo Previous Page
Loading...
XGB Analog edition manual
2 - 36
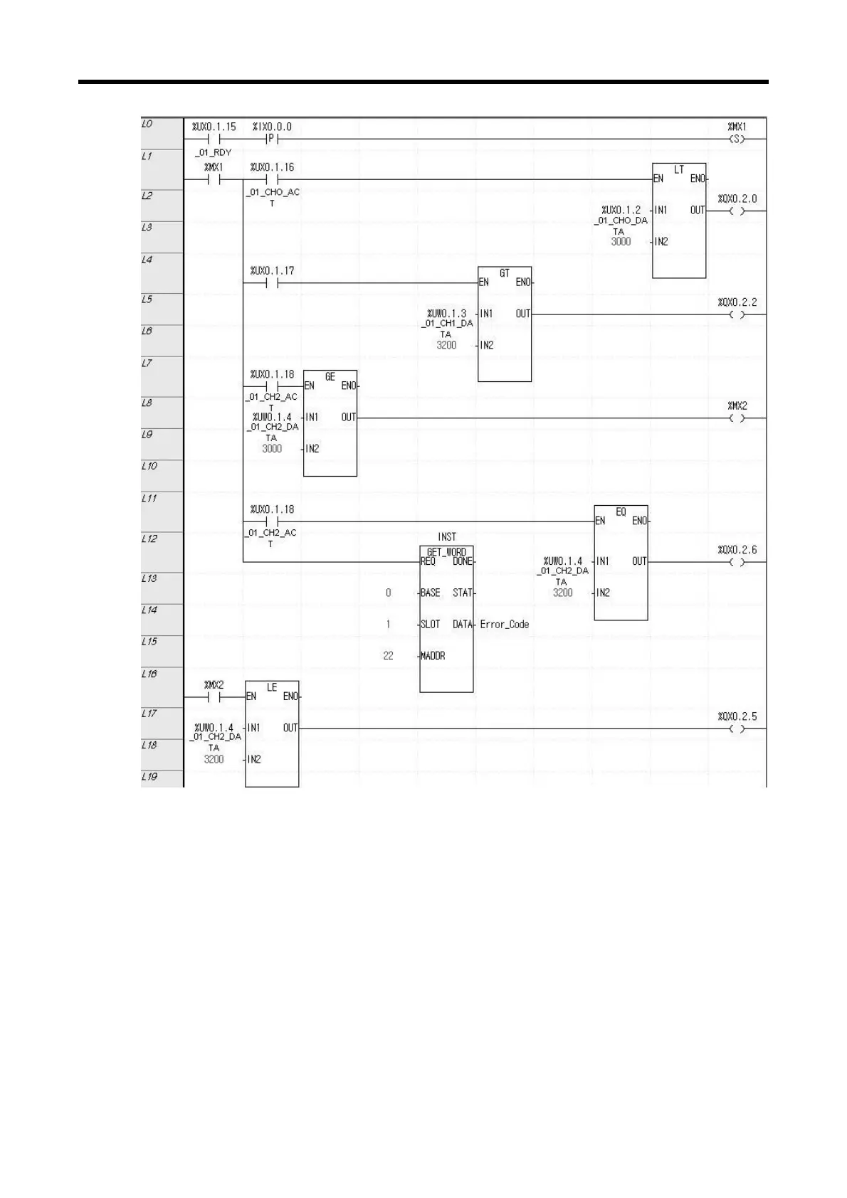
[Program in case of IEC type]

Table of Contents

Related product manuals