EasyManua.ls Logo

Plockmatic SR 85 - REP 3.4 Stapler assembly drive bar position, adjustment

Default Icon
55 pages
Print Icon
To Next Page IconTo Next Page
To Next Page IconTo Next Page
To Previous Page IconTo Previous Page
To Previous Page IconTo Previous Page
Loading...
Bookletmaker SR 85 February 2001PAGE
PURPOSE
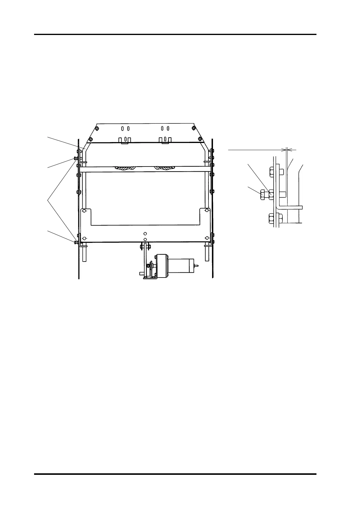
The purpose is to limit the front-to-rear movement of the Stapler assembly drive bars
without causing them to bind.
1. Switch off the main power switch and disconnect the power cord.
2. Remove the Infeed cover according to REP 1.3.
3. Remove the Front cover according to REP 1.1.
ADJUSTMENT
Top bearing
1. Push the drive bar (1) toward the rear.
2. Insert a feeler gauge to check that the gap is 0.05 mm to 0.25 mm.
3. Loosen the locknut (3).
4. Rotate the screw (2) to adjust.
5. Tighten the locknut (3).
Bottom bearing
Adjustment of the Bottom bearing is performed the same way as adjustment of the Top
bearing.
REP 3.4 Stapler assembly drive bar position, adjustment
1
2
3
2
3.4.1
0.05 to 0.25 mm
2
3

Other manuals for Plockmatic SR 85

Related product manuals